BeckerArchitektur
  • Aktuell
  • Projekte
  • Büro
  • Neubauten
  • Sanierungen
  • Studien
 
  • Architektur+

 

Überbauung im Bangarta

Familienpark beim Waldhotel

Haus mit Hof

Gewerbebau an der Simmi

Wohnen am Buchenweg

Haus Mazora

Wohnen im Riet

Aussenraum Ritterweine WY Weinbar

Haus zwischen den Reben

Carport Adler Vaduz

Wohnen an der Spaniagasse

Haus Perilla

Garagenanbau Vaduz

Wohnen auf der Egerta

Pool im Park

Wohnen im Äscherle

Wohnen im Park, Schaanerhof

Poolhaus in Laax

Wohnen am Felbenweg

Haus in den Gärten

Villa am Hang

Deponie im Rain

Wohnen am Eschnerberg

Poolhaus am Giessen

Wohnen im Oberdorf

Haus im Dorfkern

Wohnen am Exerzierplatz

Haus im Reberle

Wohnungsausbau Triesenberg

 

Becker Architektur © 2020

 

Deponie im Rain

Zum Projektbeschrieb Zur Bildgalerie

 

 

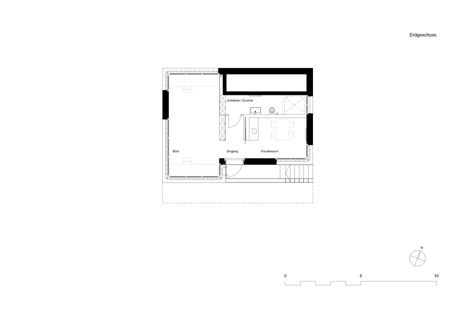
Der Neubau der Deponiewarte ist Teil des Gesamtprojektes der Neugestaltung der Deponie im Rain. Umgeben von Wald, Steinbruch und Kieswerk steht der Monolith aus Sichtbeton selbstsicher an seinem Platz.

  • Ort
    Vaduz, Liechtenstein

  • Baujahr
    2018

  • Bauherrschaft
    Gemeinde Vaduz

  • Grösse
    105 Quadratmeter

  • Architektur und Bauleitung
    Becker Architektur AG

  • Photographie
    Severin Walpen

Die Deponie im Rain wird als Gesamtanlage komplett umstrukturiert. Teil dieses Gesamtprojektes ist die neue Deponiewarte welche zentral in dem projektierten Gebiet steht. Sie dient als Arbeitsplatz für den Deponiewart und schafft Lagerflächen für diverse Arbeitsgeräte. Ebenfalls beherbergt das Gebäude sämtliche technischen Anlagen für die Reifenwaschanlage und die Objektwaage. Der Stein im Kontext wird durch die Architektursprache des Sichtbetons aufgenommen. 

Selbstsicher und integriert steht das Gebäude in der neuen Anlage. Die Schlichtheit der puren Materialien schafft eine Balance zum technischen Nutzen und zieht sich von der Projektidee bis zur Ausführung durch. Sowohl Innen als auch Aussen stehen die Materialien direkt und unbehandelt für sich und sind Konstruktion wie auch Oberfläche zugleich.

 

Becker Architektur © 2020

  • Aktuell
  • Neubauten
  • Sanierungen
  • Studien
  • Büro
  • Architektur+

 

Becker Architektur © 2020