BeckerArchitektur
  • Aktuell
  • Projekte
  • Büro
  • Neubauten
  • Sanierungen
  • Studien
 
  • Architektur+

 

Überbauung im Bangarta

Familienpark beim Waldhotel

Haus mit Hof

Gewerbebau an der Simmi

Wohnen am Buchenweg

Haus Mazora

Wohnen im Riet

Aussenraum Ritterweine WY Weinbar

Haus zwischen den Reben

Carport Adler Vaduz

Wohnen an der Spaniagasse

Haus Perilla

Garagenanbau Vaduz

Wohnen auf der Egerta

Pool im Park

Wohnen im Äscherle

Wohnen im Park, Schaanerhof

Poolhaus in Laax

Wohnen am Felbenweg

Haus in den Gärten

Villa am Hang

Deponie im Rain

Wohnen am Eschnerberg

Poolhaus am Giessen

Wohnen im Oberdorf

Haus im Dorfkern

Wohnen am Exerzierplatz

Haus im Reberle

Wohnungsausbau Triesenberg

 

Becker Architektur © 2020

 

Haus im Reberle

Zum Projektbeschrieb Zur Bildgalerie

 

 

Das Projekt ist ein Neubau welcher von Anfang bis Ende auf klare Linien und eine eindeutige Struktur setzte. In Zentrumsnaher Lage war das Ziel einen modernen und hellen Wohnraum für eine Familie zu schaffen.

  • Ort
    Schaan, Liechtenstein

  • Baujahr
    2015

  • Bauherrschaft
    Privat

  • Grösse
    130 Quadratmeter

  • Architektur
    Ralph Büchel

  • Bauleitung
    Becker Architektur AG

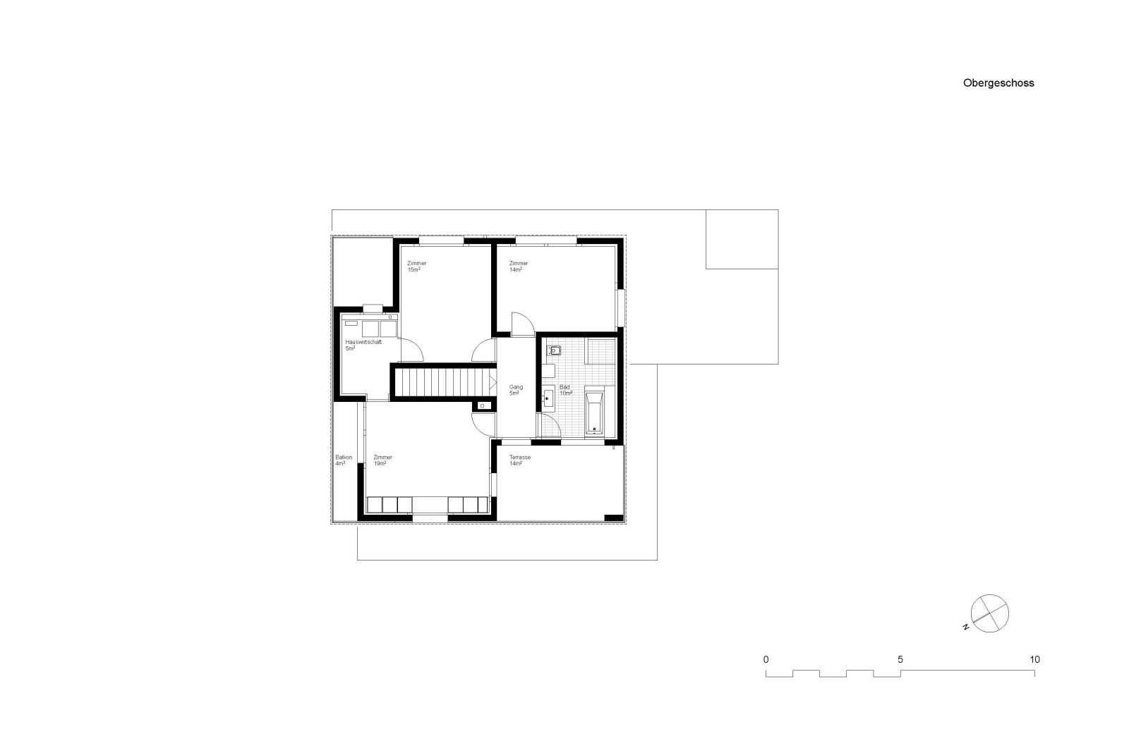
Die drei Geschosse des Einfamilienhauses sind in ihrer Architektursprache und Materialität klar voneinander getrennt. Der in Sichtbeton errichtete Sockel fügt sich in die am Hang liegende Parzelle ein. Der darauf erstellte Holzelementbau sticht besonders im Erdgeschoss durch seine rote Farbe hervor. Die Holzschalung spielt im Obergeschoss mit der Transparenz und lässt die farbliche Erscheinung stellenweise durchblicken. 

Trotz der unterschiedlichen Materialien verbindet die vertikale Holzstruktur sämtliche Geschosse. Die Grundrisse sind kompakt gestaltet und in wohlproportionierte Räume gegliedert. Deren Abfolge fliesst besonders im Erdgeschoss schön in die Umgebung ein.

 

Becker Architektur © 2020

  • Aktuell
  • Neubauten
  • Sanierungen
  • Studien
  • Büro
  • Architektur+

 

Becker Architektur © 2020