BeckerArchitektur
  • Aktuell
  • Projekte
  • Büro
  • Neubauten
  • Sanierungen
  • Studien
 
  • Architektur+

 

Überbauung im Bangarta

Familienpark beim Waldhotel

Haus mit Hof

Gewerbebau an der Simmi

Wohnen am Buchenweg

Haus Mazora

Wohnen im Riet

Aussenraum Ritterweine WY Weinbar

Haus zwischen den Reben

Carport Adler Vaduz

Wohnen an der Spaniagasse

Haus Perilla

Garagenanbau Vaduz

Wohnen auf der Egerta

Pool im Park

Wohnen im Äscherle

Wohnen im Park, Schaanerhof

Poolhaus in Laax

Wohnen am Felbenweg

Haus in den Gärten

Villa am Hang

Deponie im Rain

Wohnen am Eschnerberg

Poolhaus am Giessen

Wohnen im Oberdorf

Haus im Dorfkern

Wohnen am Exerzierplatz

Haus im Reberle

Wohnungsausbau Triesenberg

 

Becker Architektur © 2020

 

Haus Perilla

Zum Projektbeschrieb Zur Bildgalerie

 

 

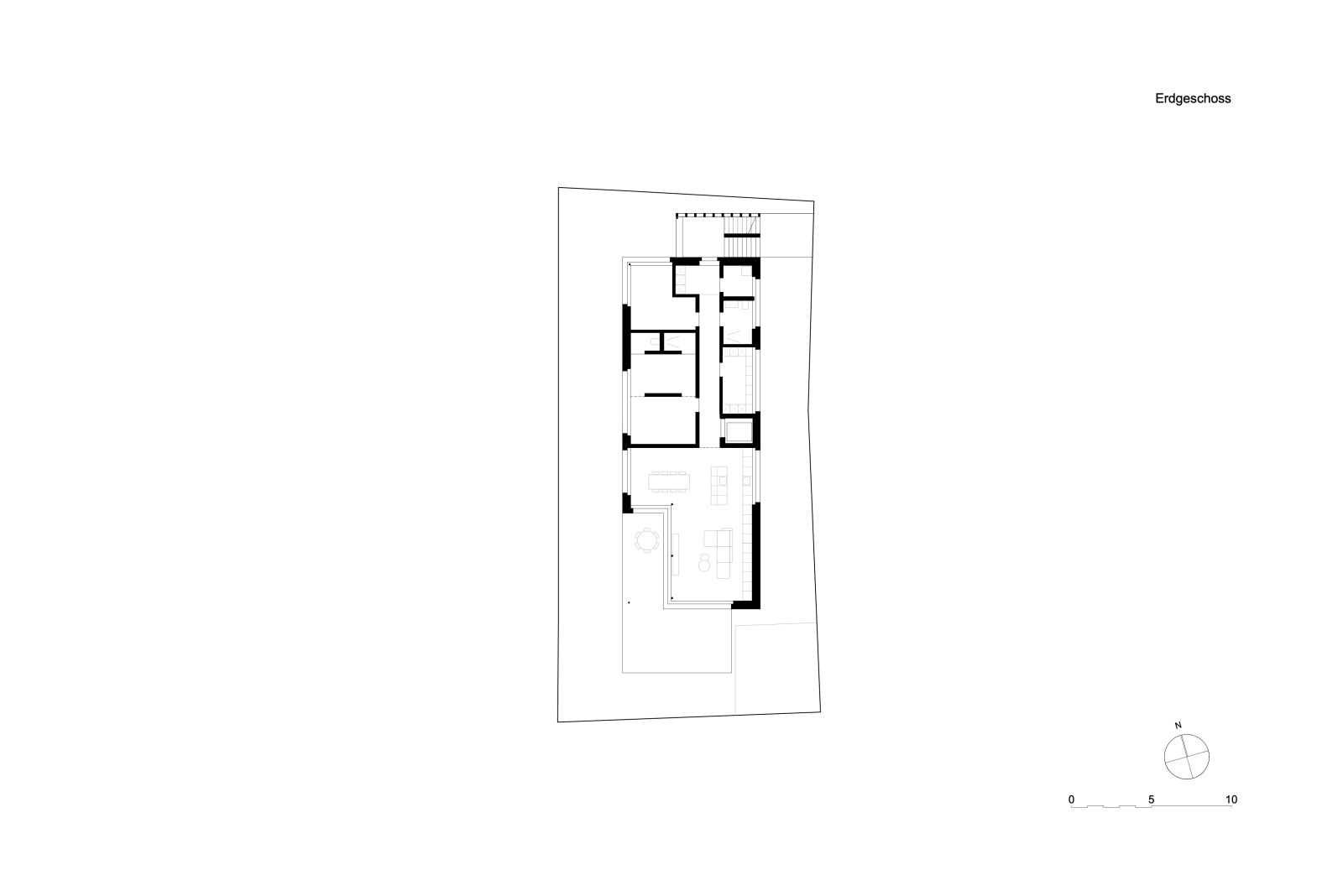
An einer Sackgasse direkt hinter dem Schaanerhof gelegen befindet sich das Mehrfamilienhaus an ruhiger Wohnlage. Die zwei Wohneinheiten sind hochwertig ausgebaut und mit grosszügigen Grundrissen versehen.

  • Ort
    Schaan, Liechtenstein

  • Bearbeitung
    2022 – 2023

  • Auftraggeber
    Privat

  • Architektur
    Becker Architektur AG

  • Bauleitung
    Frickbau AG

Durch die einmalige Lage direkt an der Überbauung Schaanerhof wird die Tiefgarage dessen mitgenutzt. Dies sorgt dafür dass auf der Parzelle selbst kein Verkehr stattfindet. Über den allgemeinen Fussweg erschlossen werden die beiden Wohnungen über ein aussen liegendes Treppenhaus. Dadurch erhält jede Einheit einen separaten Eingang. Die interne Erschliessung bis und mit Untergeschoss erfolgt über einen Personenlift. Die grosszügigen Wohnungen weisen eine klare Grundrissstruktur auf und werden mit grosszügigen Aussenräumen versehen.

 

Die Gartenwohnung erhält Zugang zu der gesamten Aussenfläche des Gebäudes. Diese wird zusammen mit dem Schaanerhof eingefasst. Die in den oberen Geschossen liegende Maisonettewohnung bietet sämtlichen komfort eines Einfamilienhauses sowie einer einfachen Geschosswohnung. Das Erscheinungsbild des Mehrfamilienhauses orientiert sich an der Fassade des Schaanerhofes und passt sich damit ideal ins Ensemble ein.

 

Becker Architektur © 2020

  • Aktuell
  • Neubauten
  • Sanierungen
  • Studien
  • Büro
  • Architektur+

 

Becker Architektur © 2020