BeckerArchitektur
  • Aktuell
  • Projekte
  • Büro
  • Neubauten
  • Sanierungen
  • Studien
 
  • Architektur+

 

Überbauung im Bangarta

Familienpark beim Waldhotel

Haus mit Hof

Gewerbebau an der Simmi

Wohnen am Buchenweg

Haus Mazora

Wohnen im Riet

Aussenraum Ritterweine WY Weinbar

Haus zwischen den Reben

Carport Adler Vaduz

Wohnen an der Spaniagasse

Haus Perilla

Garagenanbau Vaduz

Wohnen auf der Egerta

Pool im Park

Wohnen im Äscherle

Wohnen im Park, Schaanerhof

Poolhaus in Laax

Wohnen am Felbenweg

Haus in den Gärten

Villa am Hang

Deponie im Rain

Wohnen am Eschnerberg

Poolhaus am Giessen

Wohnen im Oberdorf

Haus im Dorfkern

Wohnen am Exerzierplatz

Haus im Reberle

Wohnungsausbau Triesenberg

 

Becker Architektur © 2020

 

Wohnen am Exerzierplatz

Zum Projektbeschrieb Zur Bildgalerie

 

 

Das Gebäude an der Ecke Eichengasse und Exerzierplatz steht prominent, markant und stark in der Kurve. Es trotzt selbstbewusst der teils «willkürlichen» und «wilden» umgebenden Bebauung durch bewusst kompakten und reduzierten Städtebau.

  • Ort
    Vaduz, Liechtenstein

  • Baujahr
    2016 – 2017

  • Bauherrschaft
    Privat

  • Grösse
    470 Quadratmeter

  • Architektur
    Becker Architektur AG

  • Bauleitung
    rt bauleitung gmbh

  • Photographie
    Joshua Loher

Das Haus tritt kompakt auf, hat wohl proportionierte Einschnitte und bewusst gesetzte Öffnungen, die sich je nach Wohneinheit anders orientieren. Auch die verwendeten Materialien tragen zum oben beschriebenen Auftritt bei indem sie das Gebäude in seiner Schlichtheit unterstützen. Ganz gezielt werden nur sehr wenige, gut aufeinander abgestimmte Materialien eingesetzt, welche sich dem nach dem Prinzip öffentlicher Bereich – privater Bereich unterteilen lassen. So ist der gesamte öffentliche Bereich wie Haupteingang, Treppenhaus und Einstellhalle eher hart und farblich reduziert mit Naturstein, Metall und Sichtbeton gestaltet.

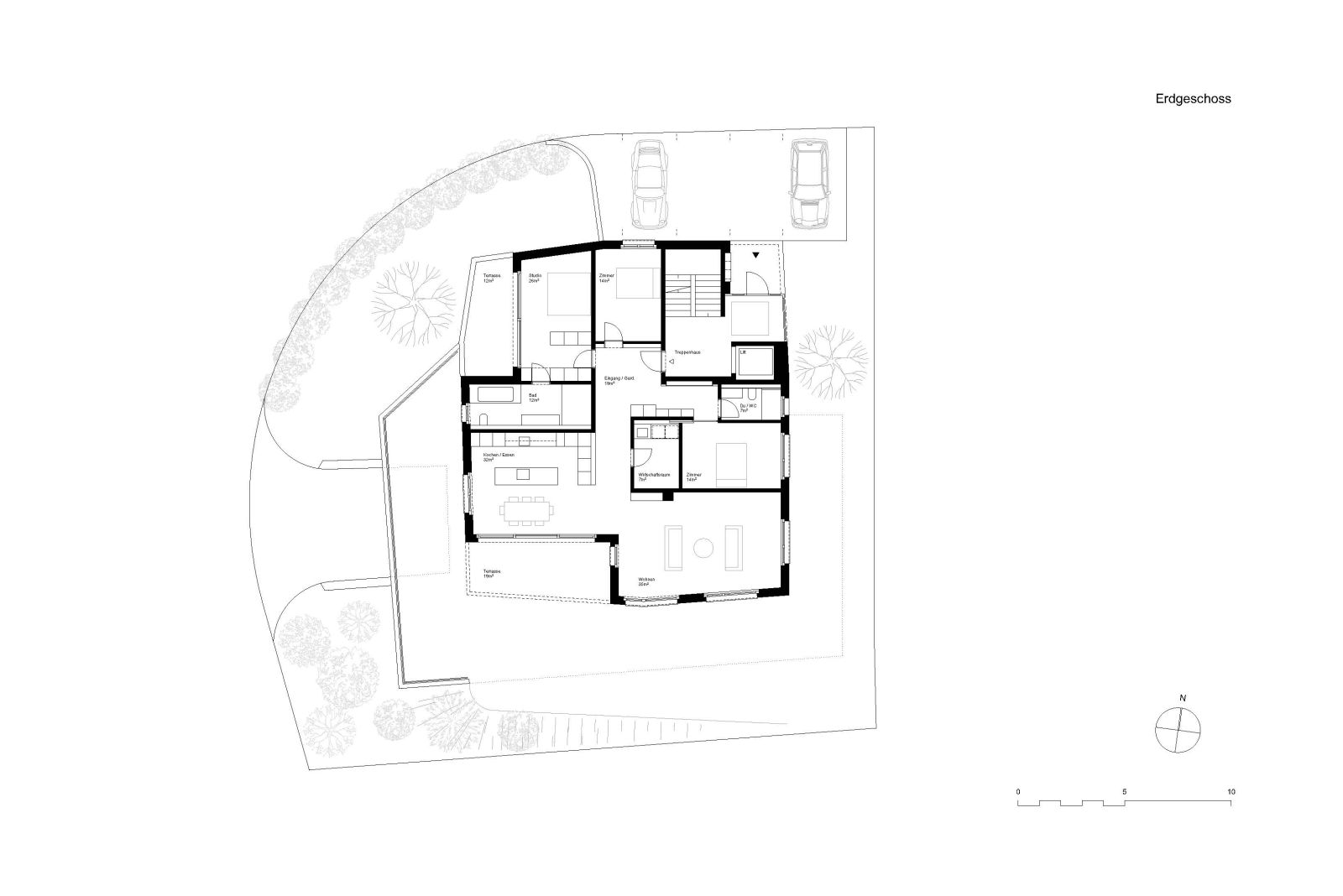
Der innere private Bereich hingegen, wirkt warm und weich. Dabei wurden Holz, Putz und eingefärbte Zementoberflächen verwendet. Die Loggien und Balkone treten dabei als Schalträume auf und verbinden innen und aussen. Darum wurden die Untersichten der Aussenräume mit Holz verkleidet um diese Verbindung zu unterstreichen. Um den gewünschten Komfort zu erreichen, erschliesst man das Gebäude mit dem Auto am tiefsten Punkt des Grundstücks über die Einstellhalle. Per Aufzug oder über das gemeinsame Treppenhaus, welches über den, ein Stockwerk höher gelegenen, Haupteingang erschlossen wird, erreicht man die Wohngeschosse.

Um eine möglichst hohe Wohnungsvielfalt zu erreichen, befindet sich im Erdgeschoss eine 4.5 Zimmer Geschosswohnung. Im Obergeschoss ist eine kompakte Studiowohnung sowie der untere Teil der 5 Zimmer Attikawohnung platziert. Über die interne Treppe oder den Aufzug gelangt man ins Attikageschoss, welches mit einer zweiseitig umlaufenden und nach Südwesten organisierten Dachterrasse ausgestattet ist. Die drei Wohneinheiten haben sieben Stellplätze in der Einstellhalle, sowie drei Aussenstellplätze für Besucher zur Verfügung. Abstellräume, Velokeller sowie Haustechnik befinden sich im Untergeschoss. Aufgrund der Hanglage sind diese natürlich belüftet und teilweise von aussen zugänglich.

 

Becker Architektur © 2020

  • Aktuell
  • Neubauten
  • Sanierungen
  • Studien
  • Büro
  • Architektur+

 

Becker Architektur © 2020