BeckerArchitektur
  • Aktuell
  • Projekte
  • Büro
  • Neubauten
  • Sanierungen
  • Studien
 
  • Architektur+

 

Überbauung im Bangarta

Familienpark beim Waldhotel

Haus mit Hof

Gewerbebau an der Simmi

Wohnen am Buchenweg

Haus Mazora

Wohnen im Riet

Aussenraum Ritterweine WY Weinbar

Haus zwischen den Reben

Carport Adler Vaduz

Wohnen an der Spaniagasse

Haus Perilla

Garagenanbau Vaduz

Wohnen auf der Egerta

Pool im Park

Wohnen im Äscherle

Wohnen im Park, Schaanerhof

Poolhaus in Laax

Wohnen am Felbenweg

Haus in den Gärten

Villa am Hang

Deponie im Rain

Wohnen am Eschnerberg

Poolhaus am Giessen

Wohnen im Oberdorf

Haus im Dorfkern

Wohnen am Exerzierplatz

Haus im Reberle

Wohnungsausbau Triesenberg

 

Becker Architektur © 2020

 

Wohnen am Felbenweg

Zum Projektbeschrieb Zur Bildgalerie

 

 

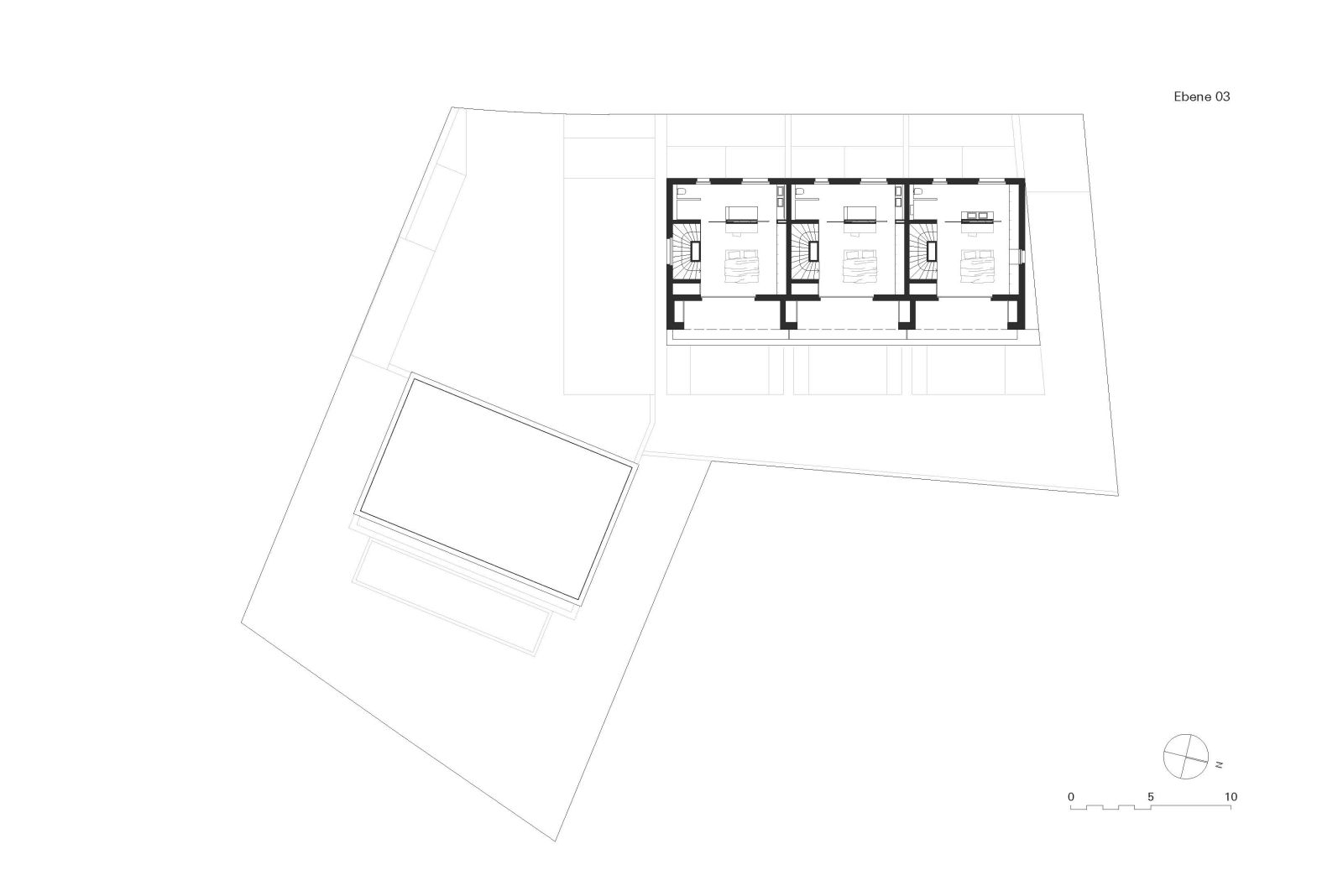
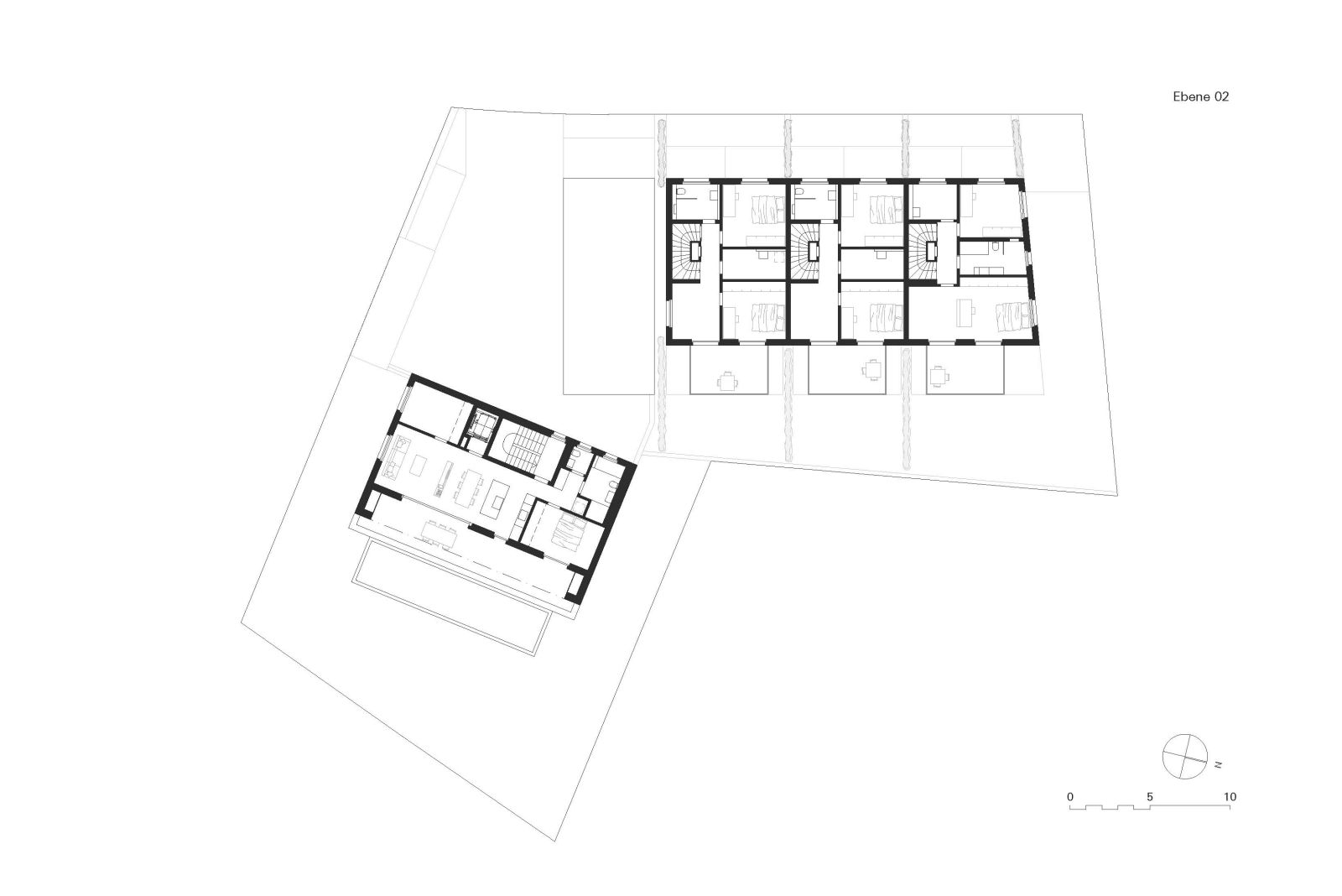
An einer der schönsten Wohnlagen von Mauren entstehen drei Einfamilien-Reihenhäuser und drei Wohnungen. Das Grundstück liegt zentrumsnah und zugleich leicht erhöht mit sonnigem Ausblick über Gärten der Überbauung.

  • Ort
    Mauren, Liechtenstein

  • Baujahr
    2019 – 2020

  • Bauherrschaft
    Privat

  • Grösse
    5 mal 170 Quadratmeter

  • Architektur
    Becker Architektur AG

  • Bauleitung
    Baumanagement Peter Büchel AG

Zurückhaltend gestaltet fügen sich die ruhigen, gleichmässigen Fassaden der Häuser harmonisch in ihre Umgebung ein. Jeweils mit privatem Garten, Terrasse, Loggia oder Dachterrasse und gemeinsamen Aussenanlagen erfüllen die Häuser und Wohnungen hohe Wohnansprüche in vielen unterschiedlichen Lebenssituationen. Die Grundrisse der Reihenhäuser von circa 170 bis über 175 Quadratmeter über drei Geschosse bieten viele Möglichkeiten und können individuell auf die Bauherrschaft angepasst werden. 

Die Geschosswohnungen mit 3.5 und 4.5 Zimmern bieten grosszügige Wohnflächen und werden mit einem Personenlift erschlossen. Die Architektur der Überbauung ist schlicht und zeitlos. Somit bietet sie sowohl die Vorteile eines Mehrfamilienhauses als auch die Kompaktheit und Aussenräume eines Einfamilienhauses. 

 

Becker Architektur © 2020

  • Aktuell
  • Neubauten
  • Sanierungen
  • Studien
  • Büro
  • Architektur+

 

Becker Architektur © 2020