BeckerArchitektur
  • Aktuell
  • Projekte
  • Büro
  • Neubauten
  • Sanierungen
  • Studien
 
  • Architektur+

 

Überbauung im Bangarta

Familienpark beim Waldhotel

Haus mit Hof

Gewerbebau an der Simmi

Wohnen am Buchenweg

Haus Mazora

Wohnen im Riet

Aussenraum Ritterweine WY Weinbar

Haus zwischen den Reben

Carport Adler Vaduz

Wohnen an der Spaniagasse

Haus Perilla

Garagenanbau Vaduz

Wohnen auf der Egerta

Pool im Park

Wohnen im Äscherle

Wohnen im Park, Schaanerhof

Poolhaus in Laax

Wohnen am Felbenweg

Haus in den Gärten

Villa am Hang

Deponie im Rain

Wohnen am Eschnerberg

Poolhaus am Giessen

Wohnen im Oberdorf

Haus im Dorfkern

Wohnen am Exerzierplatz

Haus im Reberle

Wohnungsausbau Triesenberg

 

Becker Architektur © 2020

 

Wohnen im Äscherle

Zum Projektbeschrieb Zur Bildgalerie

 

 

Durch die langgezogene Parzelle und die besonderen Grenzabstände konnte ein Projekt entstehen welches durch sein Volumen auf alle Seiten reagiert und sich optimal den Umständen anpasst.

  • Ort
    Schaan, Liechtenstein

  • Bearbeitung
    2018 – 2021

  • Auftraggeber
    Privat

  • Grösse
    300 Quadratmeter

  • Auftragsart
    1. Rang geladener Wettbewerb

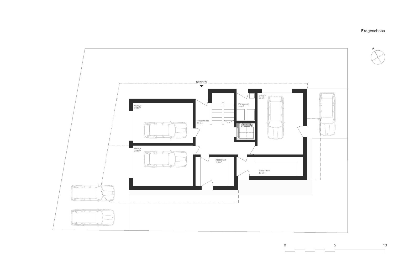
Das Mehrfamilienhaus mit Durchfahrtsstrasse, besonderen gesetzlichen Gegebenheiten und herausfordernder Parzellenform zeigt auf, dass Einschränkungen auch eine Bereicherung sein können. Durch diese spezielle Ausgangslage ist ein individuelles, vielseitiges Projekt mit aussergewöhnlicher Architektur entstanden. Im Erd- und Untergeschoss werden sämtliche Gemeinsamen Räume sowie die Nebenräume zusammengefasst.

Die zwei Wohnungen in den Obergeschossen sind unterteilt in offene Wohnräume mit je einem Ost- sowie einem Westbalkon und die Privaträume welche abtrennbar an der Nordseite des Hauses liegen. Die etwas kleinere Attikawohnung öffnet sich gegen Westen hin zum grosszügigen Aussenbereich.

 

Becker Architektur © 2020

  • Aktuell
  • Neubauten
  • Sanierungen
  • Studien
  • Büro
  • Architektur+

 

Becker Architektur © 2020