BeckerArchitektur
  • Aktuell
  • Projekte
  • Büro
  • Neubauten
  • Sanierungen
  • Studien
 
  • Architektur+

 

Überbauung im Bangarta

Familienpark beim Waldhotel

Haus mit Hof

Gewerbebau an der Simmi

Wohnen am Buchenweg

Haus Mazora

Wohnen im Riet

Aussenraum Ritterweine WY Weinbar

Haus zwischen den Reben

Carport Adler Vaduz

Wohnen an der Spaniagasse

Haus Perilla

Garagenanbau Vaduz

Wohnen auf der Egerta

Pool im Park

Wohnen im Äscherle

Wohnen im Park, Schaanerhof

Poolhaus in Laax

Wohnen am Felbenweg

Haus in den Gärten

Villa am Hang

Deponie im Rain

Wohnen am Eschnerberg

Poolhaus am Giessen

Wohnen im Oberdorf

Haus im Dorfkern

Wohnen am Exerzierplatz

Haus im Reberle

Wohnungsausbau Triesenberg

 

Becker Architektur © 2020

 

Wohnen im Riet

Zum Projektbeschrieb Zur Bildgalerie

 

 

Die länglich gezogene Parzelle erstreckt sich über die gesamte Länge entlang der Britschenstrasse. Durch die Setzung von zwei unterschiedlichen Baukörpern wird die Verbindung zu den umliegenden bereits bebauten Grundstücken erreicht. Die unterschiedlichen Bautypologien werden in zwei klaren voneinander abgesetzten Baukörper aufgenommen.

  • Ort
    Mauren, Liechtenstein

  • Bearbeitung
    2019 - 2022

  • Auftraggeber
    Privat

  • Grösse
    1600 Quadratmeter

  • Architektur
    Becker Architektur AG

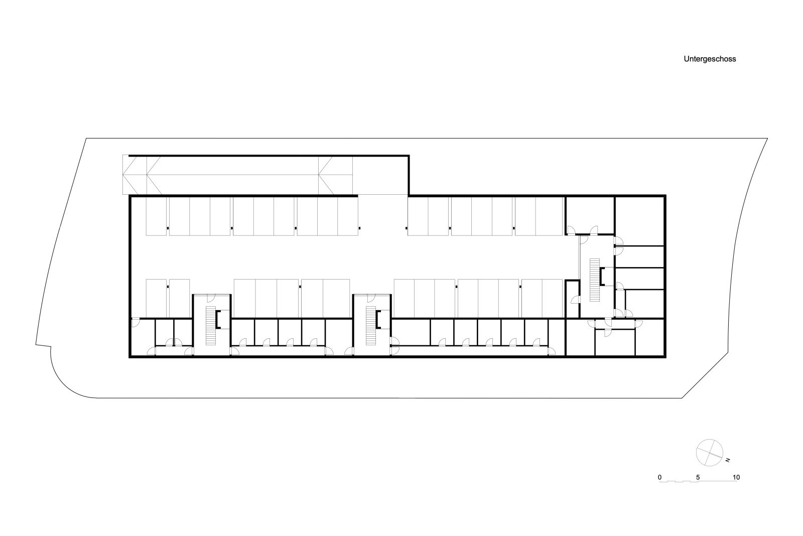
Um das Bauprojekt mit seiner Wohnnutzung möglichst verkehrsfrei zu halten wird sämtliche Parkierung von den Zugängen weg unter das Gebäude geführt. Durch das halbgeschossige Eingraben entsteht eine dezente Einfahrtssituation mit geringer Rampe. Somit kann sämtlicher Aussenraum für die Bewohner der beiden Gebäude genutzt werden. Sei es als privater Gartenbereich oder als gemeinschaftlich genutzter Aussenraum mit Spielmöglichkeit. Die geplanten gemeinschaftlichen Aussenräume können im Westen mit dem Nachbargrundstück und einer darauf entstehenden späteren Bebauung verbunden werden. Dadurch entstehen Synergien welche besonders für die Spielbereiche einen grossen Mehrwert schaffen können.

 

Durch die erhöhten Wohnräume im Gartengeschoss wird eine für den Bewohner wichtige Sicherheit geschaffen. Sämtliche Wohnräume orientieren am Aussenraum. Sei es durch die grosszügigen Zugänge zum eigenen Garten oder die als sommerlichen Wohnraum ausgestalteten Loggias in den Obergeschossen. Die Grundrisse sind mehrseitig belichtet und werden klar in zwei Zonen getrennt. Die Wohnzone orientiert sich stark an den Aussenräumen während die Schlafräume privater platziert werden. Grosszügige Räume sowohl in den Wohnungen als auch in den Erschliessungszonen schaffen eine angenehme Wohnsituation.

 

Becker Architektur © 2020

  • Aktuell
  • Neubauten
  • Sanierungen
  • Studien
  • Büro
  • Architektur+

 

Becker Architektur © 2020