BeckerArchitektur
  • Aktuell
  • Projekte
  • Büro
  • Neubauten
  • Sanierungen
  • Studien
 
  • Architektur+

 

Zubau am Hang

Gasthaus Planken

Wohnen im Lett

Wohnen an der Kirchstrasse

Villa Hellweg

Haus im Grünen

Wohnen an der Pflugstrasse

Liechtensteinische Landesbibliothek

Messnerhaus Vaduz

Feuerwehrdepot Vaduz

Liechtensteinische Landesbank

Wohnen an der Lochgasse

Gemeindezentrum Clunia

LGT Timber

Wohnen im Bangarten

Wohnen im Feld

Wohnen im Quartier

Wohnen im Alter

Jugendherberge Vaduz – Schaan

Wohnen über den Dächern

Gemeinde Vaduz und Liechtensteinisches Rotes Kreuz

Wohnen im Gewerbe

 

Becker Architektur © 2020

 

Wohnen im Gewerbe

Zum Projektbeschrieb Zur Bildgalerie

 

 

Die Überbauung mit einer Mischnutzung für Gewerbe- und Wohnanteil soll neue Massstäbe in diesem Bereich in Liechtenstein setzen und aufzeigen, dass sich ein traditioneller Handwerksbetrieb und moderne, attraktive Wohnungen optimal ergänzen bzw. nicht behindern müssen.

  • Ort
    Vaduz, Liechtenstein

  • Bearbeitung
    2015

  • Auftraggeber
    Axalo Immobilien AG

  • Grösse
    1800 Quadratmeter

  • Architektur
    Becker Architektur AG

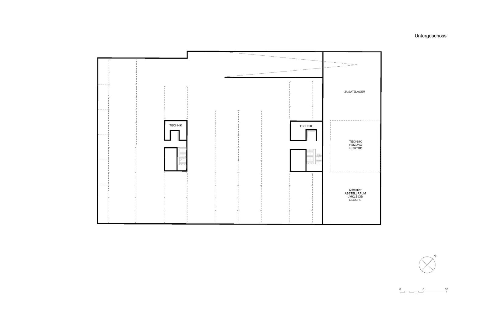
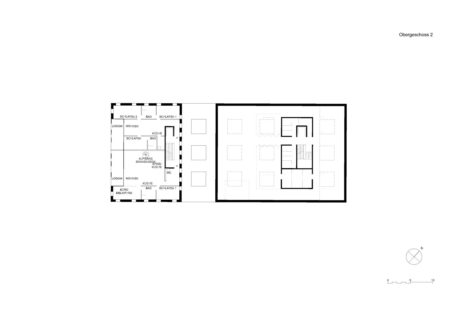
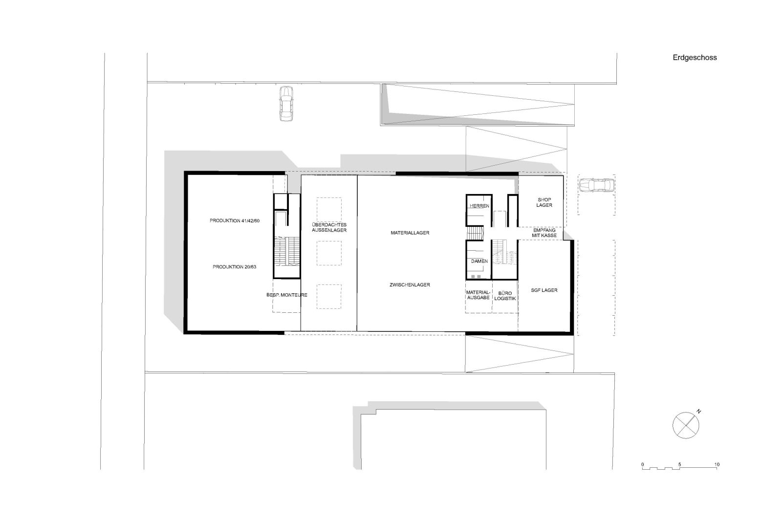
Zwei kubische Baukörper, verschmolzen im Erdgeschoss, durch den Aussenbereich der als überdecktes Lager funktioniert vereint, bilden das Projekt. Drei Nutzungen finden in diesem neuen Gebäude Platz. Das Gewerbe im Erdgeschoss, die Arbeitswelt und das Wohnen in den Obergeschossen. Die Trennung dieser Funktionen ist wichtig, um Komfort zwischen den unterschiedlichen Nutzern zu garantieren. Aus diesem Grund sind die Wohnungen nach Süden orientiert, mit Zugang zum Kanal und Blick in die Landschaft, während sich das Arbeiten mehrheitlich nach Nordosten orientiert. 

Die Architektur des Entwurfs basiert auf einem Raster, welches zu einer kubischen, strengen aber dennoch ruhigen Form führt. Unterschiedliche Niveaus und Atmosphären sorgen mit der starken Struktur für einen harmonischen und funktionierenden Nutzungsmix.

 

Becker Architektur © 2020

  • Aktuell
  • Neubauten
  • Sanierungen
  • Studien
  • Büro
  • Architektur+

 

Becker Architektur © 2020