BeckerArchitektur
  • Aktuell
  • Projekte
  • Büro
  • Neubauten
  • Sanierungen
  • Studien
 
  • Architektur+

 

Zubau am Hang

Gasthaus Planken

Wohnen im Lett

Wohnen an der Kirchstrasse

Villa Hellweg

Haus im Grünen

Wohnen an der Pflugstrasse

Liechtensteinische Landesbibliothek

Messnerhaus Vaduz

Feuerwehrdepot Vaduz

Liechtensteinische Landesbank

Wohnen an der Lochgasse

Gemeindezentrum Clunia

LGT Timber

Wohnen im Bangarten

Wohnen im Feld

Wohnen im Quartier

Wohnen im Alter

Jugendherberge Vaduz – Schaan

Wohnen über den Dächern

Gemeinde Vaduz und Liechtensteinisches Rotes Kreuz

Wohnen im Gewerbe

 

Becker Architektur © 2020

 

Wohnen im Quartier

Zum Projektbeschrieb Zur Bildgalerie

 

 

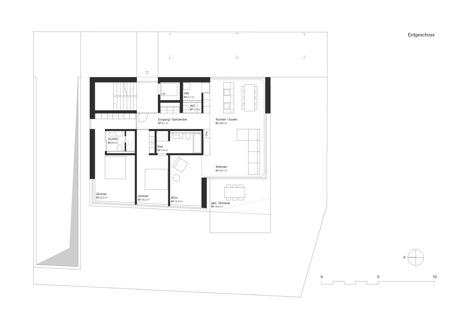
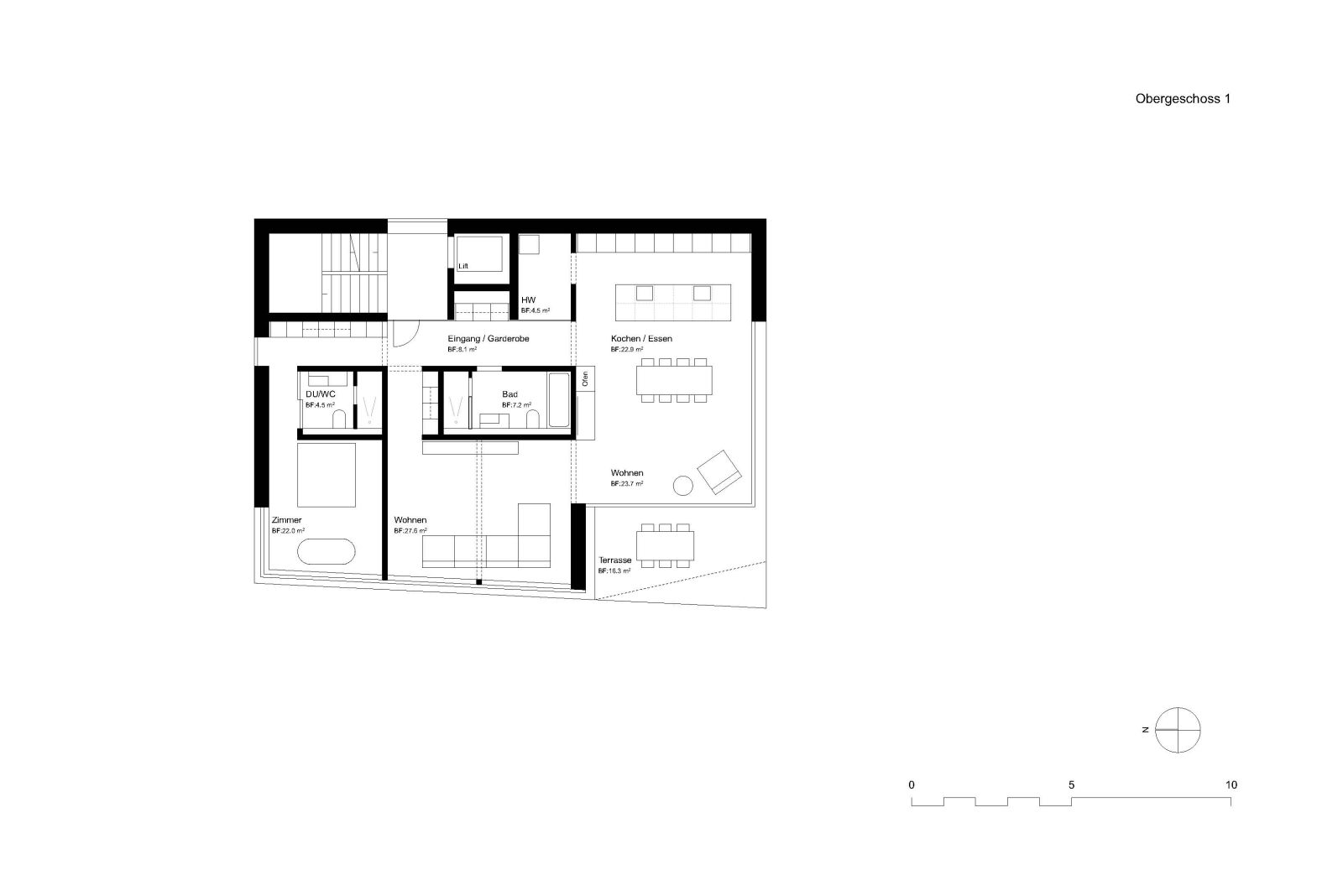
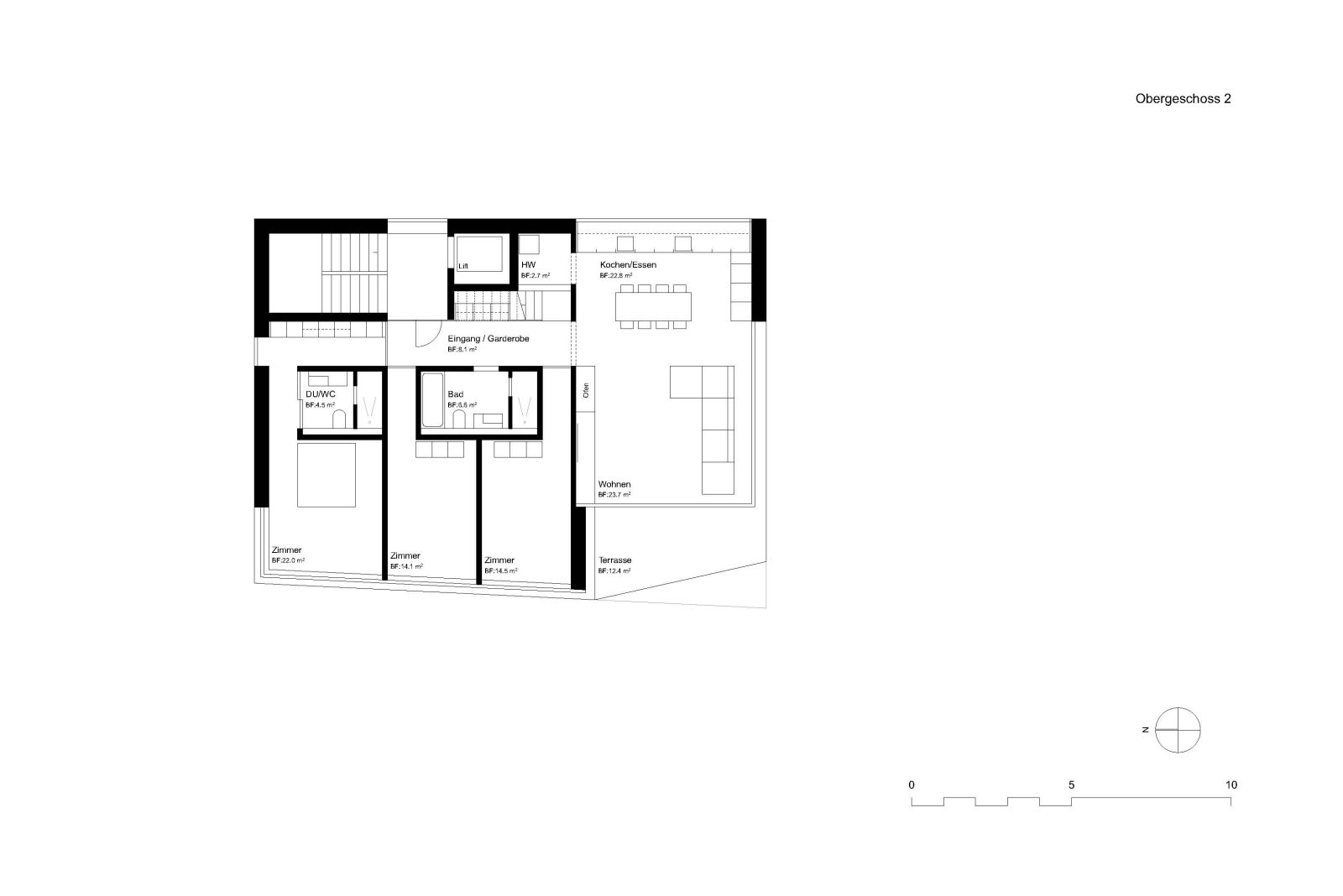
Mitten in einem dicht bebauten Wohnquartier in Schaan soll ein flexibles Mehrfamilienhaus für mehrere Generationen geplant werden welches sich individuell den Bedürfnissen der unterschiedlichen Altersklassen anpassen lässt.

  • Ort
    Schaan, Liechtenstein

  • Bearbeitung
    2018

  • Auftraggeber
    Privat

  • Grösse
    360 Quadratmeter

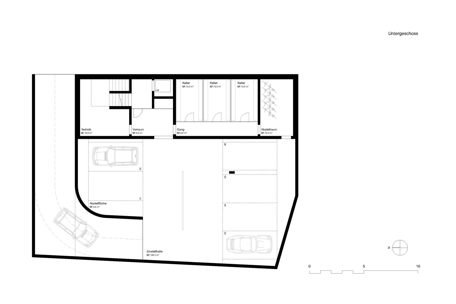
Das Wohnhaus mit drei Geschosswohnungen und Einstellhalle nutzt die Parzellengrenze optimal aus. Die Wohnungen orientieren sich nach Süd-West und öffnen sich zum Garten hin. Eine einfache Grundstruktur lässt, passend zu den Lebensabschnitten der Bewohner, unterschiedliche Ausbauvarianten der einzelnen Wohnungen zu. Hohe Flexibilität und sowie grosszügige und doch kompakte Grundrisse zeichnen das Projekt aus. 

Die klare Struktur der um den Nasszellenkern angeordneten Wohnräume setzt sich in jedem der Geschosse fort und schafft mit seiner einfachen Leitungsführung auch später einfache Umbaumöglichkeiten. Die unterschiedlichen Aussenräume, mit Garten und Dachterrasse, geben jeder Wohneinheit zusätzlich verschiedene Qualitäten. 

 

Becker Architektur © 2020

  • Aktuell
  • Neubauten
  • Sanierungen
  • Studien
  • Büro
  • Architektur+

 

Becker Architektur © 2020