BeckerArchitektur
  • Aktuell
  • Projekte
  • Büro
  • Neubauten
  • Sanierungen
  • Studien
 
  • Architektur+

 

Zubau am Hang

Gasthaus Planken

Wohnen im Lett

Wohnen an der Kirchstrasse

Villa Hellweg

Haus im Grünen

Wohnen an der Pflugstrasse

Liechtensteinische Landesbibliothek

Messnerhaus Vaduz

Feuerwehrdepot Vaduz

Liechtensteinische Landesbank

Wohnen an der Lochgasse

Gemeindezentrum Clunia

LGT Timber

Wohnen im Bangarten

Wohnen im Feld

Wohnen im Quartier

Wohnen im Alter

Jugendherberge Vaduz – Schaan

Wohnen über den Dächern

Gemeinde Vaduz und Liechtensteinisches Rotes Kreuz

Wohnen im Gewerbe

 

Becker Architektur © 2020

 

Gemeindezentrum Clunia

Zum Projektbeschrieb Zur Bildgalerie

 

 

Das Konzept des neuen Gemeindezentrums sieht eine Entwicklung in zwei Phasen vor. Das in der ersten Phase errichtete Zentrumshaus spannt zur Kirche hin den neuen Zentrumsplatz auf. Das monolithische Begegnungszentrum setzt einen klaren Akzent entlang der Churerstrasse und bildet den Auftakt zum neuen Zentrumshaus. In der zweiten Phase wird das Ensemble durch einen Gebäudewinkel ergänzt der den Platz räumlich fasst.

  • Ort
    Nendeln, Liechtenstein

  • Bearbeitung
    2019

  • Auftraggeber
    Gemeinde Eschen

  • Architektur
    Becker Architektur AG

  • Planerteam
    AG für Landschaft

Die Raumkanten erzeugen eine spannungsvolle Entwicklung des Strassenraums und stellen die St. Sebastians Kirche frei. Die Kirche wird durch die neue Bebauung eingerahmt und bleibt das Herz der Siedlung. Durch Dachform und Materialität integriert sich das Projekt wie selbstverständlich in die bestehende Dorfstruktur. Das Zusammenbinden des die Kirche umspielenden Zentrumsplatzes mit Mehrfunktionsfläche und dem Platzbereich Begegenungszentrum gibt dem Dorf eine neue, grosszügige Mitte. Mit einem Höhenausgleich in der Sebastianstrasse gelingt es, diese beiden Platzseiten auch räumlich zu verknüpfen, was mit dem durchlaufenden Belagsmuster zusätzlich unterstützt wird. Um diese Abflachung im Übergangsbereich zu ermöglichen, wird die Steigung der Sebastianstrasse zwischen Einlenker Churerstrasse und Platzübergang etwas angepasst. 

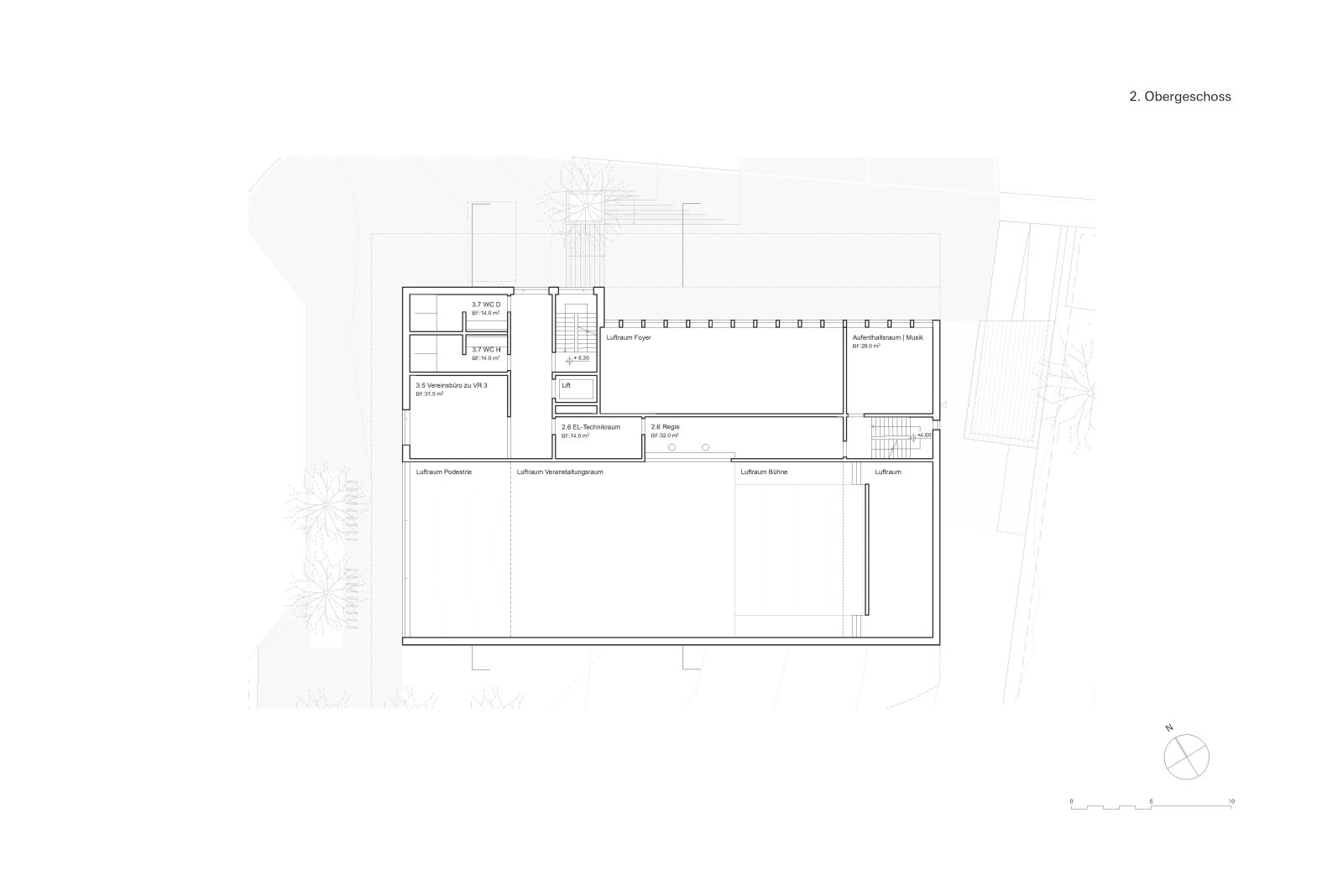
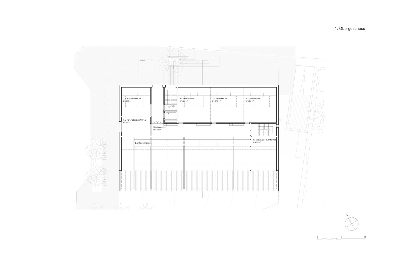
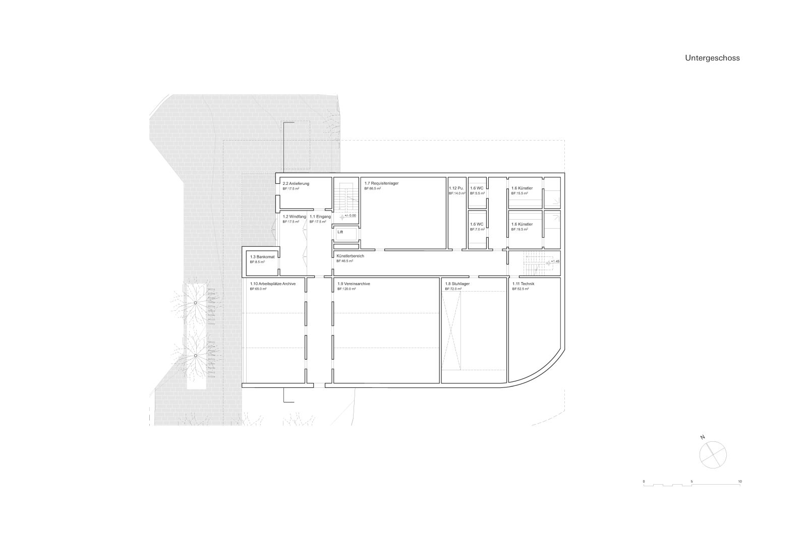
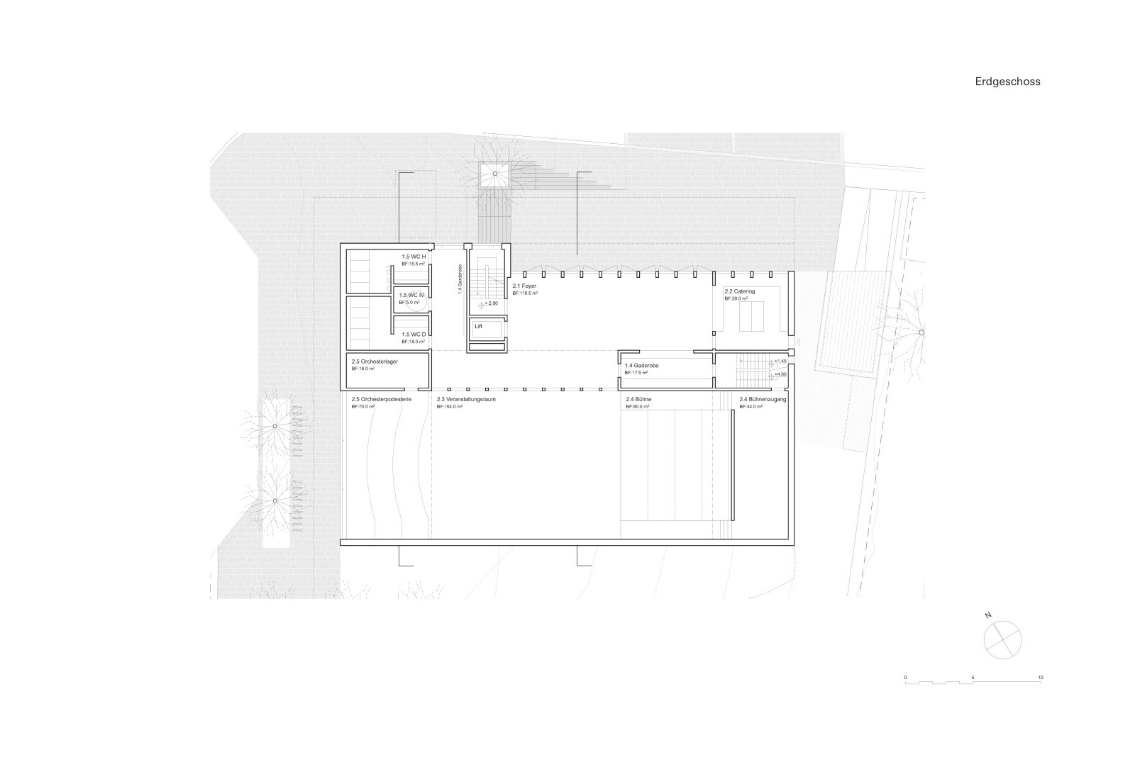
Das Zentrumshaus bietet eine Begegnungsfläche für alle Nutzergruppen und Gemeindebewohner. Die Eingangszonen sind klar lesbar als bauliche Rücksprünge abgesetzt, sie verbinden sich mit den jeweiligen angrenzenden Plätzen und gliedern den gesamten Baukörper. Dadurch entsteht eine starke Verknüpfung des Zentrumshauses mit dem neuen Stadtraum. Die Grundrissstruktur setzt auf eine Entflechtung der unterschiedlichen Nutzer und ermöglicht dadurch eine möglichst grosse Nutzungsüberlagerung. Vereinsmitglieder und Künstler betreten das Haus vom Vorplatz her. Besucher erschliessen den Veranstaltungsbereich über das Foyer welches fliessend an den Zentrumsplatz anschliesst. 

 

Becker Architektur © 2020

  • Aktuell
  • Neubauten
  • Sanierungen
  • Studien
  • Büro
  • Architektur+

 

Becker Architektur © 2020