BeckerArchitektur
  • Aktuell
  • Projekte
  • Büro
  • Neubauten
  • Sanierungen
  • Studien
 
  • Architektur+

 

Zubau am Hang

Gasthaus Planken

Wohnen im Lett

Wohnen an der Kirchstrasse

Villa Hellweg

Haus im Grünen

Wohnen an der Pflugstrasse

Liechtensteinische Landesbibliothek

Messnerhaus Vaduz

Feuerwehrdepot Vaduz

Liechtensteinische Landesbank

Wohnen an der Lochgasse

Gemeindezentrum Clunia

LGT Timber

Wohnen im Bangarten

Wohnen im Feld

Wohnen im Quartier

Wohnen im Alter

Jugendherberge Vaduz – Schaan

Wohnen über den Dächern

Gemeinde Vaduz und Liechtensteinisches Rotes Kreuz

Wohnen im Gewerbe

 

Becker Architektur © 2020

 

Wohnen im Alter

Zum Projektbeschrieb Zur Bildgalerie

 

 

Die Gemeinde Balzers plant nahe des Pflegeheims mehrere Alterswohnungen für das selbständige Wohnen im Alter.

  • Ort
    Balzers, Liechtenstein

  • Bearbeitung
    2018

  • Auftraggeber
    Gemeinde Balzers

  • Grösse
    845 Quadratmeter

  • Architektur
    ARGE Becker Architektur AG / Verling & Partner

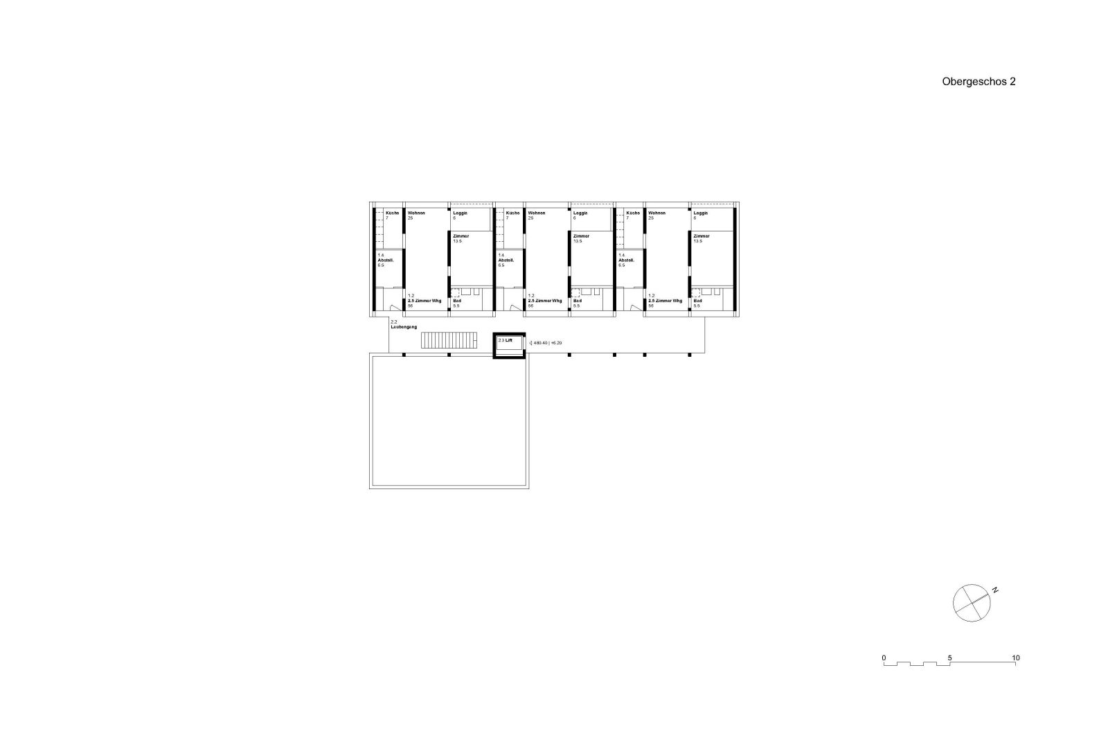
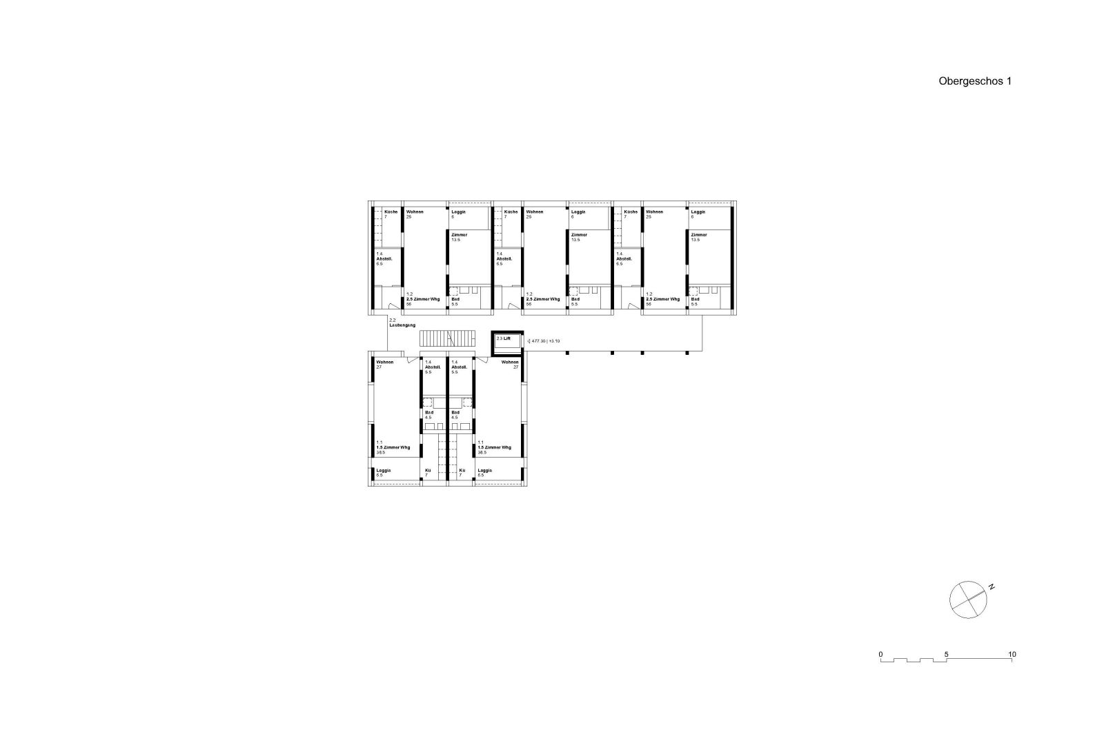
Die Baukörper weisen sowohl Aussen als auch Innen eine einfache Struktur auf. Die Wohnungen sind in ihrer Grösse auf zwei Baukörper aufgeteilt und gliedern sich in einzelne Schotten. Ein offener Laubengang als Erschliessung dient als zusätzlicher Aussenraum, Begegnungszone sowie als halböffentliche Verbindung der Aussenräume. Dadurch können die Erschliessungsflächen zu den Wohnungen minimiert und doch belebt werden. Obwohl die Burgseite wenige Sonnenstrahlen generiert weist der Ort eine grosse Qualität auf. 

Durch den Laubengang können die gleichwertig orientierten Wohnungen zusätzlich mit diffusem Licht vom Wald her belichtet werden. Die Erhöhung der ersten Wohnebene um ca. 70cm schafft eine grössere Privatsphäre und ein, für ältere Personen durchaus wichtiges, Gefühl der Sicherheit.

 

Becker Architektur © 2020

  • Aktuell
  • Neubauten
  • Sanierungen
  • Studien
  • Büro
  • Architektur+

 

Becker Architektur © 2020