BeckerArchitektur
  • Aktuell
  • Projekte
  • Büro
  • Neubauten
  • Sanierungen
  • Studien
 
  • Architektur+

 

Zubau am Hang

Gasthaus Planken

Wohnen im Lett

Wohnen an der Kirchstrasse

Villa Hellweg

Haus im Grünen

Wohnen an der Pflugstrasse

Liechtensteinische Landesbibliothek

Messnerhaus Vaduz

Feuerwehrdepot Vaduz

Liechtensteinische Landesbank

Wohnen an der Lochgasse

Gemeindezentrum Clunia

LGT Timber

Wohnen im Bangarten

Wohnen im Feld

Wohnen im Quartier

Wohnen im Alter

Jugendherberge Vaduz – Schaan

Wohnen über den Dächern

Gemeinde Vaduz und Liechtensteinisches Rotes Kreuz

Wohnen im Gewerbe

 

Becker Architektur © 2020

 

Gasthaus Planken

Zum Projektbeschrieb Zur Bildgalerie

 

 

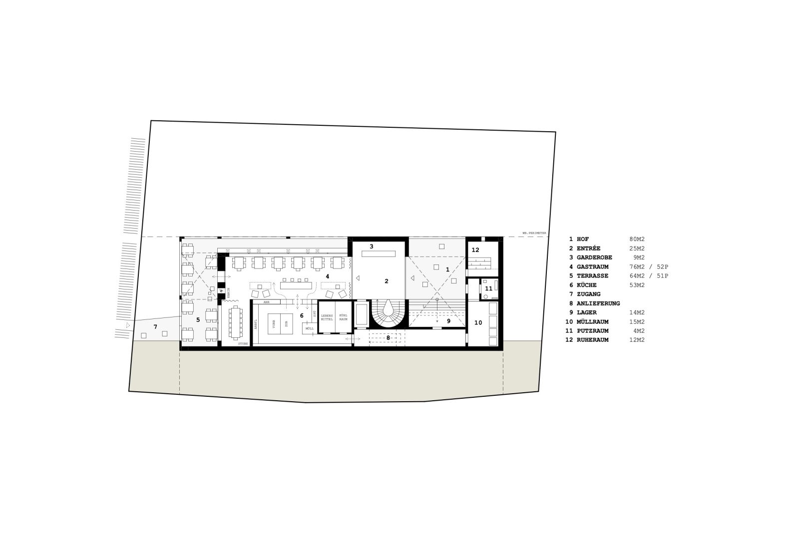
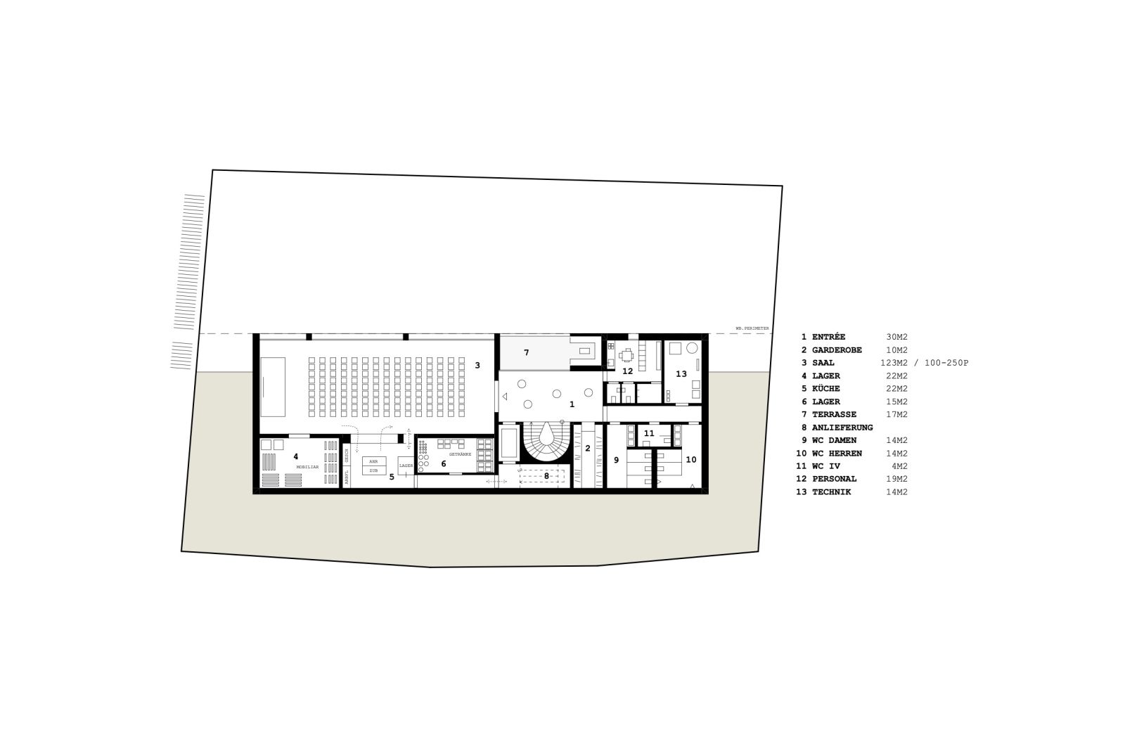
Der Standort des neuen Gasthauses befindet sich an einem Kreuzungspunkt an welchem der öffentliche Strassenraum in einem gemeinschaftlichen Platz mündet. Ein Ort der Besucher zu unterschiedlichsten Jahres- und Tageszeiten mit seinem einzigartigen Panorama fesselt. Egal, ob an einem klaren Sommertag mit Blicken bis zum Bodensee, zur frühen Morgenstunde über einem Meer von Wolken oder am Ende eines Tages zum Sonnenuntergang. Dieser Ort soll Möglichkeiten schaffen – ein Platz der Ruhe, zum Aufenthalt und für Veranstaltungen jeglicher Art.

  • Ort
    Planken

  • Bearbeitung
    2024

  • Auftraggeber
    Gemeinde Planken

  • Architektur
    Becker Architektur AG

  • Wettbewerb
    -

 

Ein zweigeschossiger Baukörper mit einem schwebenden Satteldach fügt sich nahtlos in die bestehenden Qualitäten seines räumlichen Umfeldes ein und stellt zugleich einen Mehrwert für seine Umgebung dar. Das einfach strukturierte Bauwerk wird selbstverständlicher Bestandteil des Aussichtspunktes und verschmilzt mit der Umgebenden Landschaft. Das zwischen zwei vertikal erstreckten Betonkernen gespannte Satteldach fügt sich durch seine Form und handwerkliche Präzision in die Dachlandschaft seiner Umgebung ein. Die Raumübergänge zwischen Gebäude und Umgebung sind natürlich und fliessend.

 

Becker Architektur © 2020

  • Aktuell
  • Neubauten
  • Sanierungen
  • Studien
  • Büro
  • Architektur+

 

Becker Architektur © 2020