BeckerArchitektur
  • Aktuell
  • Projekte
  • Büro
  • Neubauten
  • Sanierungen
  • Studien
 
  • Architektur+

 

Zubau am Hang

Gasthaus Planken

Wohnen im Lett

Wohnen an der Kirchstrasse

Villa Hellweg

Haus im Grünen

Wohnen an der Pflugstrasse

Liechtensteinische Landesbibliothek

Messnerhaus Vaduz

Feuerwehrdepot Vaduz

Liechtensteinische Landesbank

Wohnen an der Lochgasse

Gemeindezentrum Clunia

LGT Timber

Wohnen im Bangarten

Wohnen im Feld

Wohnen im Quartier

Wohnen im Alter

Jugendherberge Vaduz – Schaan

Wohnen über den Dächern

Gemeinde Vaduz und Liechtensteinisches Rotes Kreuz

Wohnen im Gewerbe

 

Becker Architektur © 2020

 

Liechtensteinische Landesbibliothek

Zum Projektbeschrieb Zur Bildgalerie

 

 

Mit dem Titel von «back to the roots» wird sowohl der Städtebau als auch die Architektur des Projektvorschlags angesprochen. Die klare Form des Gebäudes soll erhalten bleiben und der Formensprache der Architektur wird grosse Beachtung geschenkt. In einem Rückbau entsteht die Chance einer schlichten und doch ausdrucksstarken Architektursprache.

  • Ort
    Vaduz

  • Bearbeitung
    2022

  • Auftraggeber
    Regierung des Fürstentums Liechtenstein, Land Liechtenstein

  • Architektur
    Becker Architektur AG | Daniel Dom

  • Planerteam
    F. Preisig AG

  • Wettbewerb
    -

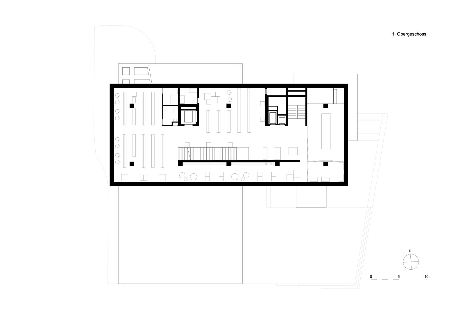
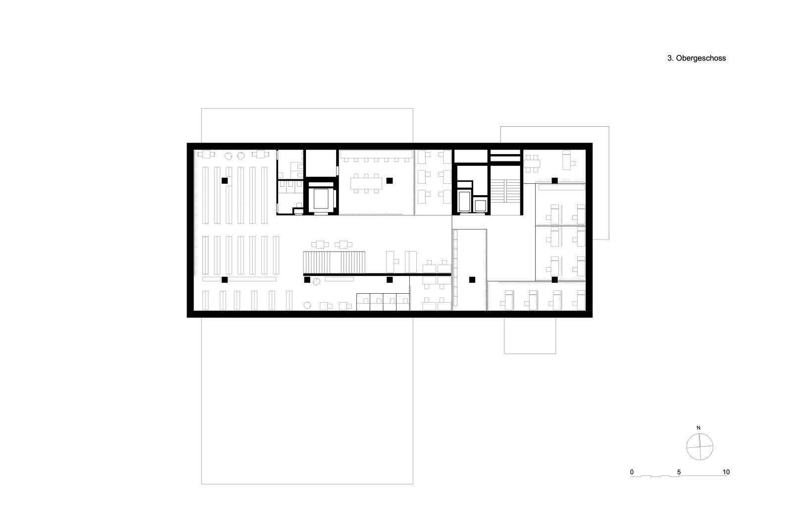
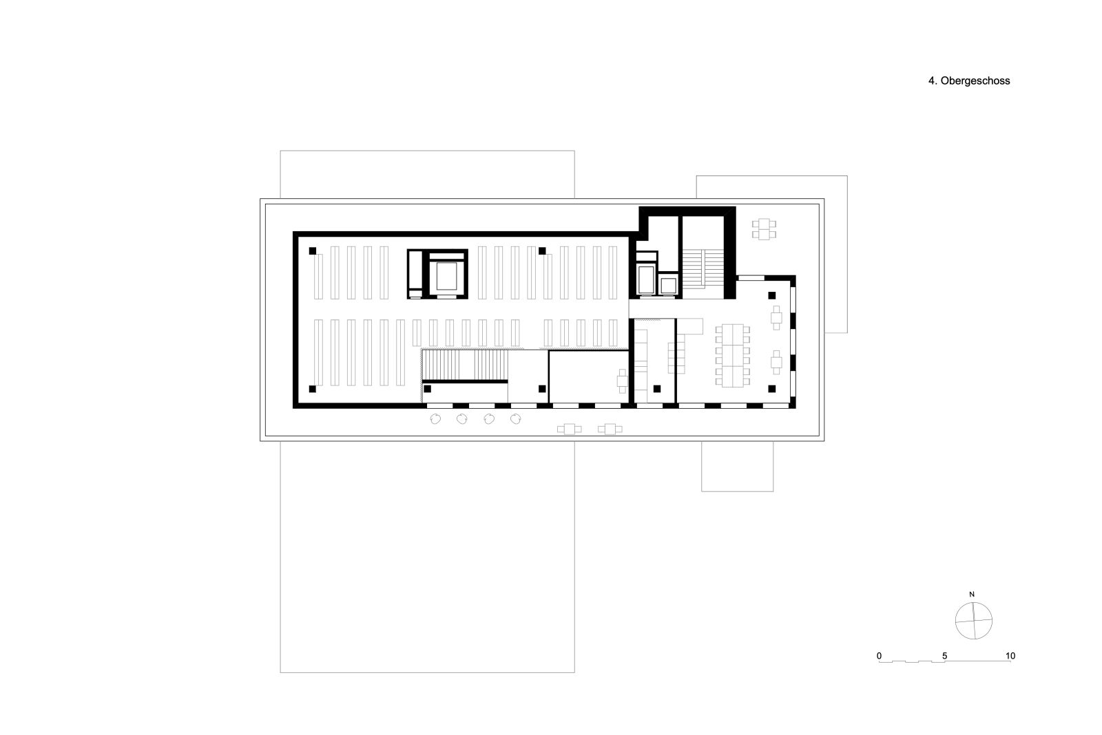
Die unglaublich starke visuelle Kraft des Rohbaus wird auf alten Baustellenfotos deutlich. Klare einfache Strukturen und eine schlichte Formensprache machen diese Kraft aus. Zu dieser soll mit dem Projektentwurf zurückgefunden werden. Der Bestand wird auf seine Grundstruktur rückgebaut. Die visuell prägende Plattenstruktur des Rohbaus soll nun deutlich sichtbar werden. Die Bänder der Geschossdecken sowie die Stützen im Innern sind formgebend für das neue Gebäude und geben ihm seine dynamische Wirkung. Durch eine Erweiterung der vertikalen Struktur wird das Konzept des Bestandes gestärkt. Die Fassade wird in reduzierter Art neu gestaltet und energetisch in das Haustechnikkonzept einbezogen. Die Treppenkerne bleiben erhalten und werden räumlich ergänzt. Einfache, klare Grundstrukturen die durch eine flexible Möblierung bespielt werden können. Dadurch kann der Grundriss möglichst frei gestaltet werden und ist für zukünftige Änderungen vorbereitet.

Das Grundkonzept der einfachen Tragstruktur ist auch im Innenraum erkennbar. Die Räume werden so schlicht wie möglich gehalten und von Installationen weitestgehend befreit. Die Möblierung selbst übernimmt hier die Aufgabe der Zonierung sowie Gestaltung der nötigen Atmosphäre. Die stark frequentierten Bereiche werden um die Treppenbereiche angeordnet und privatere Zonen orientieren sich am natürlichen Licht der Fassade. Wo Wände nötig sind, werden diese mehrheitlich als leichte Glaswände mit Vorhängen als optische Trennung ausgeführt. Dieselben Vorhänge werden auch in den Bibliotheksbereichen als zonierende Gestaltungselemente verwendet.

 

Becker Architektur © 2020

  • Aktuell
  • Neubauten
  • Sanierungen
  • Studien
  • Büro
  • Architektur+

 

Becker Architektur © 2020