BeckerArchitektur
  • Aktuell
  • Projekte
  • Büro
  • Neubauten
  • Sanierungen
  • Studien
 
  • Architektur+

 

Zubau am Hang

Gasthaus Planken

Wohnen im Lett

Wohnen an der Kirchstrasse

Villa Hellweg

Haus im Grünen

Wohnen an der Pflugstrasse

Liechtensteinische Landesbibliothek

Messnerhaus Vaduz

Feuerwehrdepot Vaduz

Liechtensteinische Landesbank

Wohnen an der Lochgasse

Gemeindezentrum Clunia

LGT Timber

Wohnen im Bangarten

Wohnen im Feld

Wohnen im Quartier

Wohnen im Alter

Jugendherberge Vaduz – Schaan

Wohnen über den Dächern

Gemeinde Vaduz und Liechtensteinisches Rotes Kreuz

Wohnen im Gewerbe

 

Becker Architektur © 2020

 

Wohnen im Lett

Zum Projektbeschrieb Zur Bildgalerie

 

 

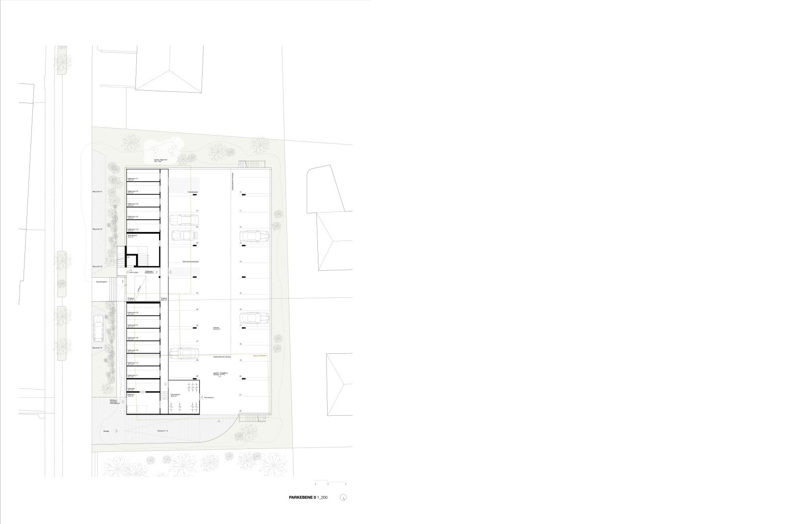
Selbstbewusst, zurückhaltend und selbstverständlich. Die Wohnüberbauung Wohnen im Lett fügt sich in die Struktur seines heterogenen Umfeldes ein und tritt in Beziehung zu den Wohnbauten des Quartiers. Der Alvierweg präsentiert sich als eine wenig befahrene Wohnstrasse, umgeben von Mehrfamilienhäusern, die einen malerischen Blick auf das westlich gelegene Ried und den östlich verlaufenden Schlosswald eröffnet. In diesem besonderen Umfeld war es das Bestreben, eine Wohnüberbauung mit klarer städtebaulicher Haltung und Typologie zu entwickeln welche sich in seiner Formensprache natürlich einfügt.

  • Ort
    Vaduz

  • Bearbeitung
    2024

  • Auftraggeber
    AXALO

  • Architektur
    Becker Architektur AG

  • Wettbewerb
    -

Die Gliederung des Baukörpers wurde von der Idee geleitet, eine schlichte Architektur zu schaffen, die keine klar definierte Hinter- oder Vorderseite aufweist. Vielmehr wurde ein Gebäude konzipiert, in welchem beide Himmelsrichtungen Ost Schlosswald als auch West Ried von gleichwertiger Bedeutung sind. Neben dem Konstruktionsraster wurden Ausblicke und Himmelsrichtungen nicht nur als räumliche Orientierung, sondern auch programmatisch, energetisch und architektonisch in die Gestaltung integriert. Der Ost-West Bezug erzeugt gleichwertige Wohnqualitäten und ermöglicht eine natürliche Querlüftung.

 

Becker Architektur © 2020

  • Aktuell
  • Neubauten
  • Sanierungen
  • Studien
  • Büro
  • Architektur+

 

Becker Architektur © 2020