BeckerArchitektur
  • Aktuell
  • Projekte
  • Büro
  • Neubauten
  • Sanierungen
  • Studien
 
  • Architektur+

 

Zubau am Hang

Gasthaus Planken

Wohnen im Lett

Wohnen an der Kirchstrasse

Villa Hellweg

Haus im Grünen

Wohnen an der Pflugstrasse

Liechtensteinische Landesbibliothek

Messnerhaus Vaduz

Feuerwehrdepot Vaduz

Liechtensteinische Landesbank

Wohnen an der Lochgasse

Gemeindezentrum Clunia

LGT Timber

Wohnen im Bangarten

Wohnen im Feld

Wohnen im Quartier

Wohnen im Alter

Jugendherberge Vaduz – Schaan

Wohnen über den Dächern

Gemeinde Vaduz und Liechtensteinisches Rotes Kreuz

Wohnen im Gewerbe

 

Becker Architektur © 2020

 

Wohnen an der Kirchstrasse

Zum Projektbeschrieb Zur Bildgalerie

 

 

Die zentrumsnah gelegene Kirchstrasse bietet attraktive Wohnqualitäten. Das Quartier liegt ruhig im Grünen und trotzdem mitten in Vaduz.

  • Ort
    Vaduz, Liechtenstein

  • Baujahr
    2022 – 2024

  • Bauherrschaft
    Privat

  • Architektur
    Becker Architektur AG

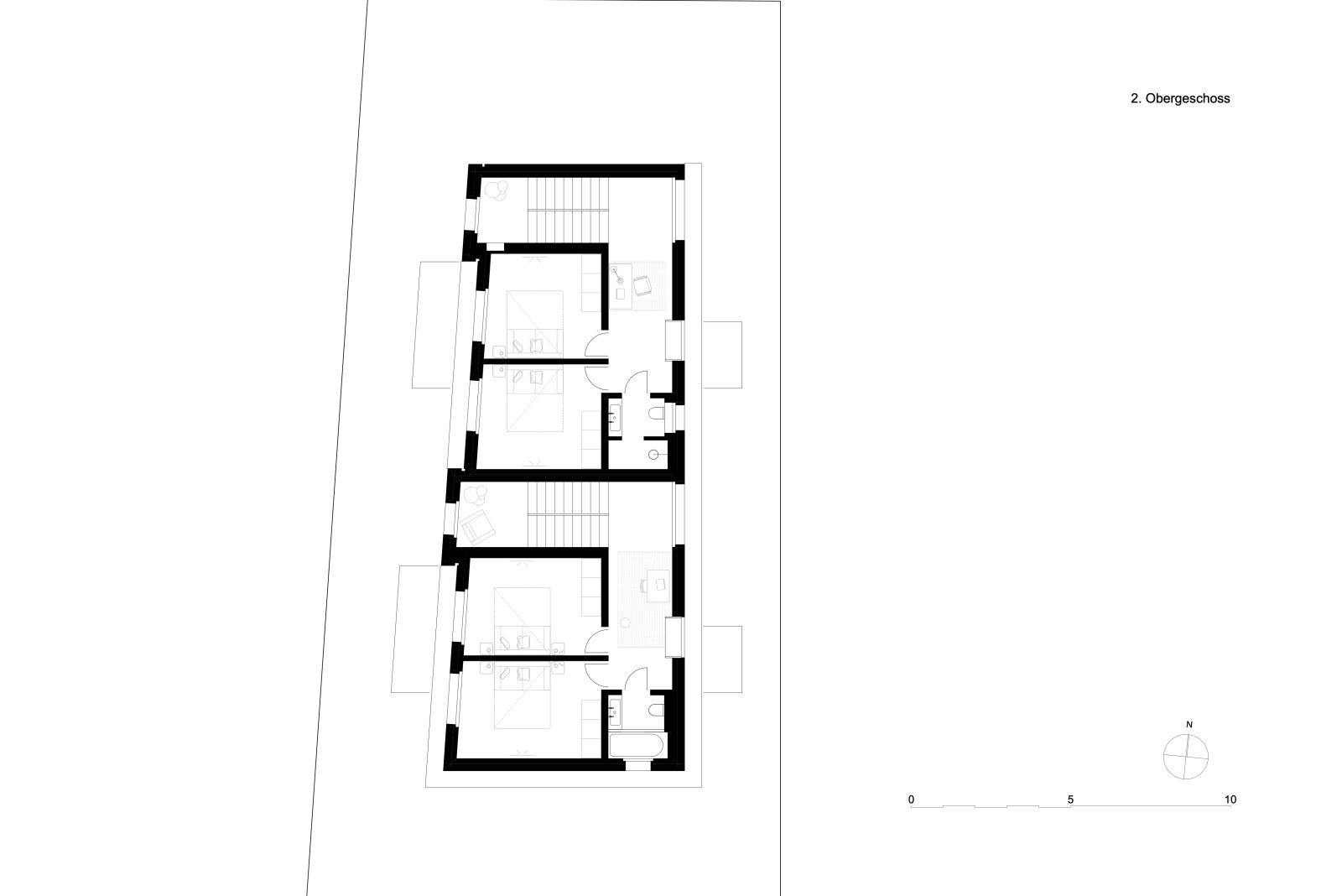
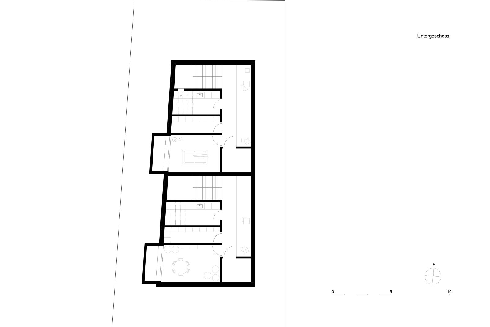
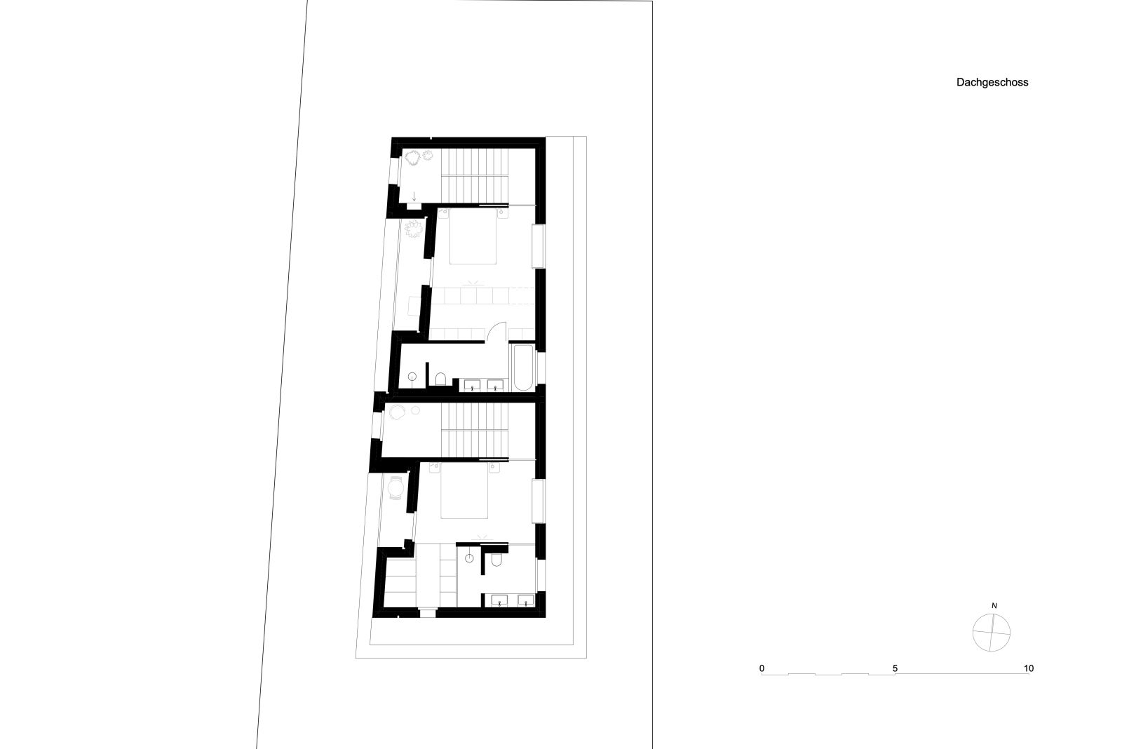
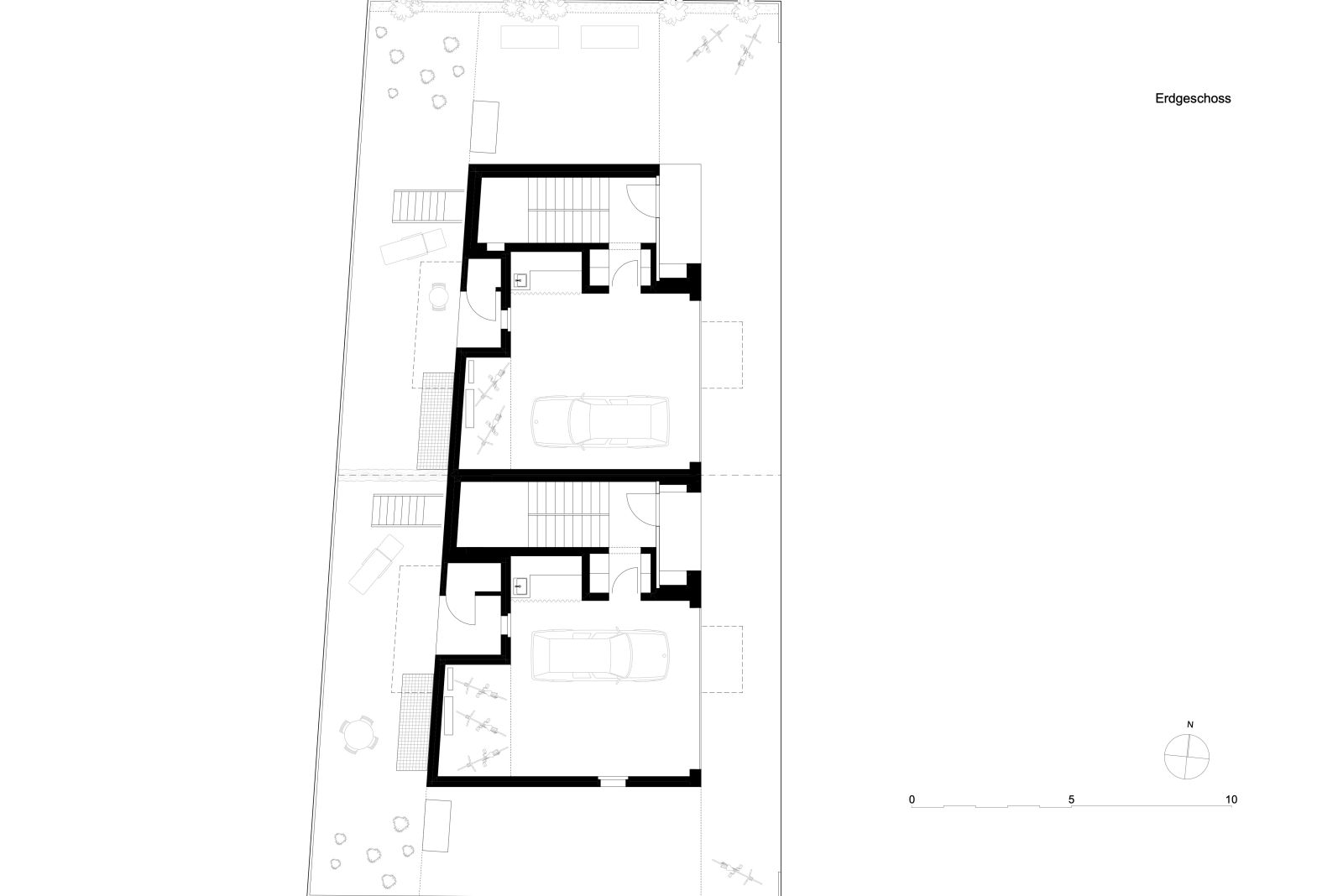
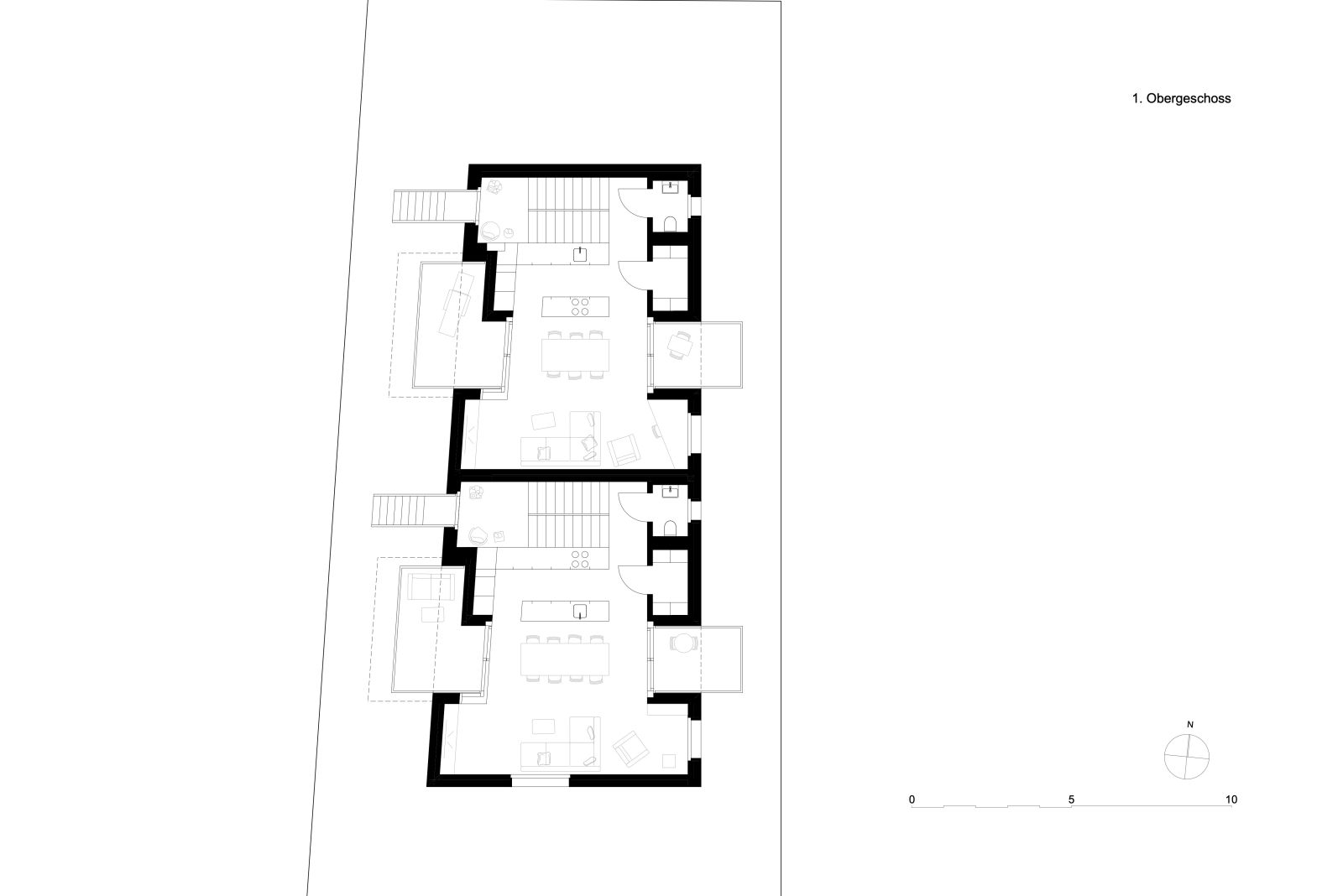
Das langgezogene Grundstück ist mit einem bestehenden Mehrfamilienhaus bebaut. Neu entstehen zwei Reihenhäuser welche sowohl die Qualitäten eines Einfamilienhauses als auch die Vorzüge vom Wohnungsbau aufzeigen. Durch die schmale Grundlage der Parzelle ist der Entwurf in mehreren Ansichten gefordert. Mit Rücksprüngen und Einzügen schafft es der Baukörper sowohl dem Baugesetz gerecht zu werden als auch die Innenräume angemessen zu bespielen.

Auf fünf Geschossen verteilt befinden sich die Wohnräume der beiden Reihenhäuser. Die kompakte Anordnung der Grundrisse lässt trotz schmaler Bautiefe eine optimale Ausnutzung der Räumlichkeiten zu. Grosszügige Erschliessungszonen können als erweiterte Wohnräume genutzt werden. An das Projekt angepasste architektonische Gestaltungselemente, wie ein Lichthof im Garten, geben dem Projekt ihre Besonderheiten.

 

Becker Architektur © 2020

  • Aktuell
  • Neubauten
  • Sanierungen
  • Studien
  • Büro
  • Architektur+

 

Becker Architektur © 2020