BeckerArchitektur
  • Aktuell
  • Projekte
  • Büro
  • Neubauten
  • Sanierungen
  • Studien
 
  • Architektur+

 

Zubau am Hang

Gasthaus Planken

Wohnen im Lett

Wohnen an der Kirchstrasse

Villa Hellweg

Haus im Grünen

Wohnen an der Pflugstrasse

Liechtensteinische Landesbibliothek

Messnerhaus Vaduz

Feuerwehrdepot Vaduz

Liechtensteinische Landesbank

Wohnen an der Lochgasse

Gemeindezentrum Clunia

LGT Timber

Wohnen im Bangarten

Wohnen im Feld

Wohnen im Quartier

Wohnen im Alter

Jugendherberge Vaduz – Schaan

Wohnen über den Dächern

Gemeinde Vaduz und Liechtensteinisches Rotes Kreuz

Wohnen im Gewerbe

 

Becker Architektur © 2020

 

Wohnen an der Lochgasse

Zum Projektbeschrieb Zur Bildgalerie

 

 

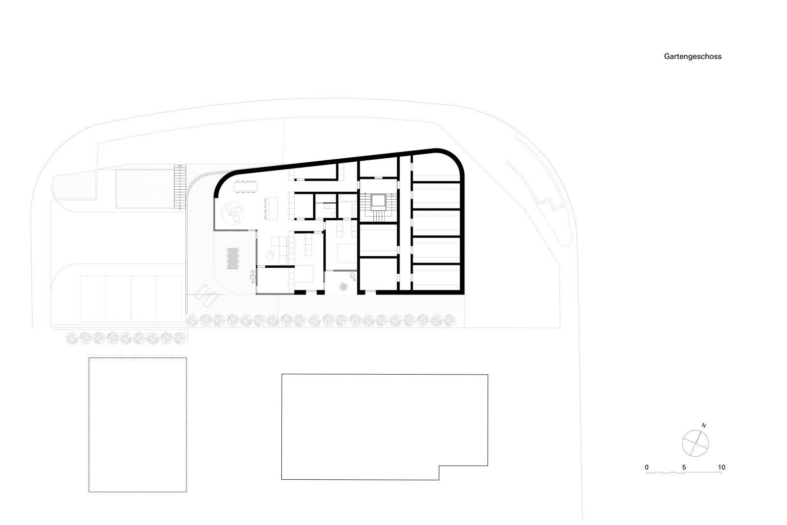
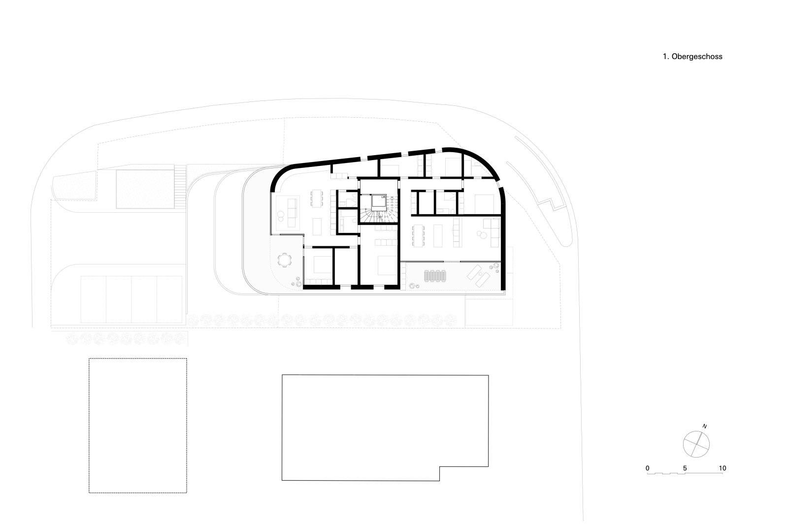
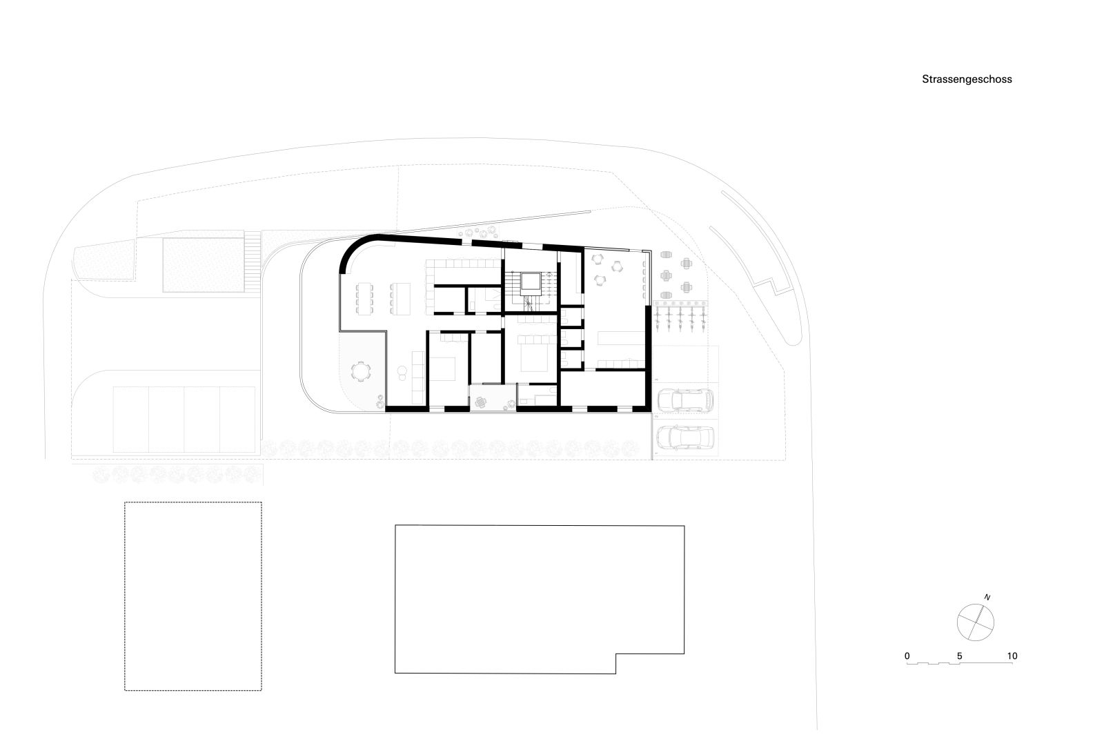
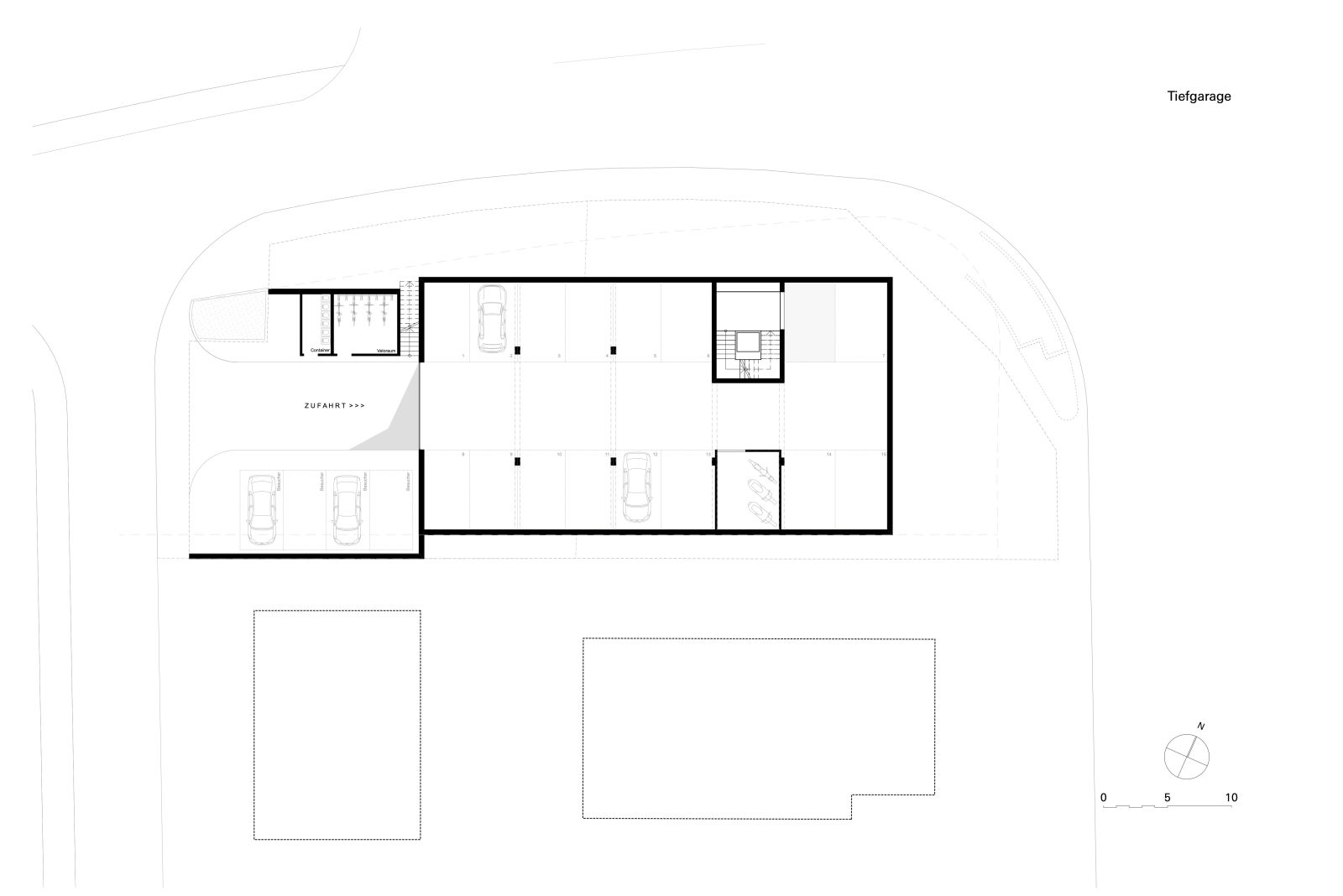
Die lange Parzelle bildet die Grundlage für den Baukörper. Die organischen Linien in der Architektur sowie die Terrassenbauweise setzen ein klares Zeichen and dieser markanten Kreuzung.

  • Ort
    Vaduz, Liechtenstein

  • Bearbeitung
    2020 -

  • Auftraggeber
    Privat

  • Architektur
    Becker Architektur AG

Durch die Stetzung des Baukörpers entlang der Lochgasse mit der Fussgängerunterführung im Oberen Teil der Parzelle wird die Städtebaulich gewichtung des Ortes betont . Ebenso wird das Grundstück durch die Tiefgarage mehrheitlilch vom Verkehr befreit. Eine zentrale Erschliessung in kombination mit den organischen Elementen führt zu individuell spannenden Grundrissen. Die Wohnungen sind offen gestaltet und lassen trotz klaren Zonen eine mehrheitlich freie Ausführung der Grundrisse zu.

Die Wohnungen sind Südwestlich orientiert – was die Wohnqualität ebenfalls wesentlich erhöht. Die grosszügigen Terrassen können als zusätzlicher sommerlicher Wohnraum gelesen werden. Eine Gewerbefläche im Erdgeschoss führt den traditionellen Standort des Quartierladens weiter. Die in der Attika gelegene Wohnung mit der üppigen Terrassenfläche orientiert sich an allen Himmelsrichtungen.

 

Becker Architektur © 2020

  • Aktuell
  • Neubauten
  • Sanierungen
  • Studien
  • Büro
  • Architektur+

 

Becker Architektur © 2020