BeckerArchitektur
  • Aktuell
  • Projekte
  • Büro
  • Neubauten
  • Sanierungen
  • Studien
 
  • Architektur+

 

Zubau am Hang

Gasthaus Planken

Wohnen im Lett

Wohnen an der Kirchstrasse

Villa Hellweg

Haus im Grünen

Wohnen an der Pflugstrasse

Liechtensteinische Landesbibliothek

Messnerhaus Vaduz

Feuerwehrdepot Vaduz

Liechtensteinische Landesbank

Wohnen an der Lochgasse

Gemeindezentrum Clunia

LGT Timber

Wohnen im Bangarten

Wohnen im Feld

Wohnen im Quartier

Wohnen im Alter

Jugendherberge Vaduz – Schaan

Wohnen über den Dächern

Gemeinde Vaduz und Liechtensteinisches Rotes Kreuz

Wohnen im Gewerbe

 

Becker Architektur © 2020

 

Wohnen im Bangarten

Zum Projektbeschrieb Zur Bildgalerie

 

 

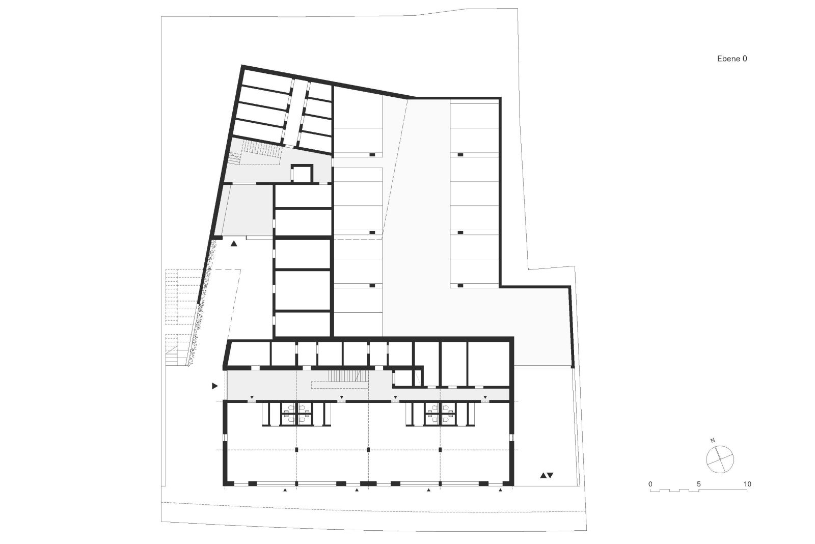
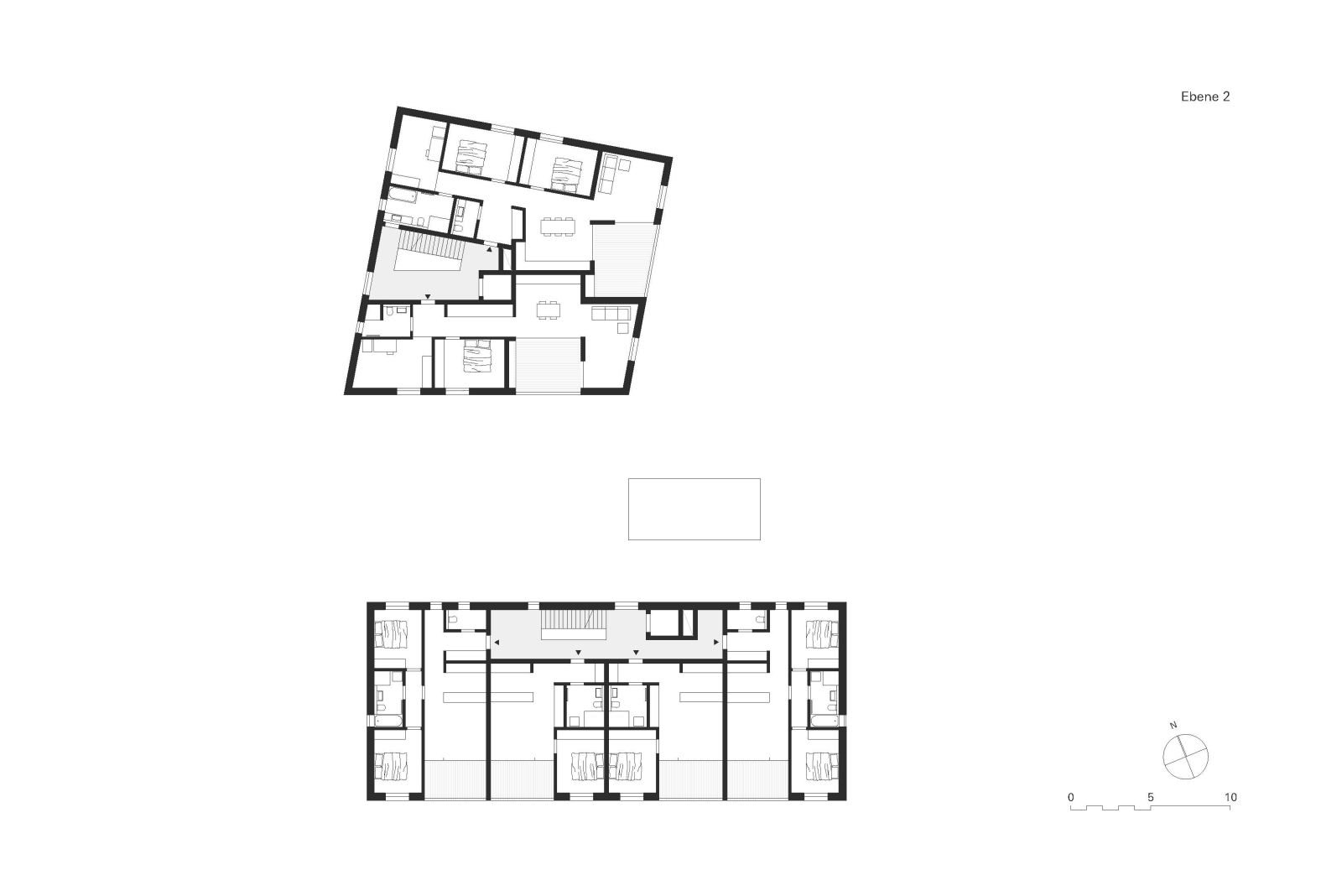
Die Überbauung mit zwei Baukörpern im Bangarten in Vaduz orientiert sich sowohl am Quartier als auch an der Vorgabe des ursprünglichen Überbauungsplans.

  • Ort
    Vaduz, Liechtenstein

  • Bearbeitung
    2019

  • Auftraggeber
    Privat

  • Grösse
    1700 Quadratmeter

  • Architektur
    Becker Architektur AG

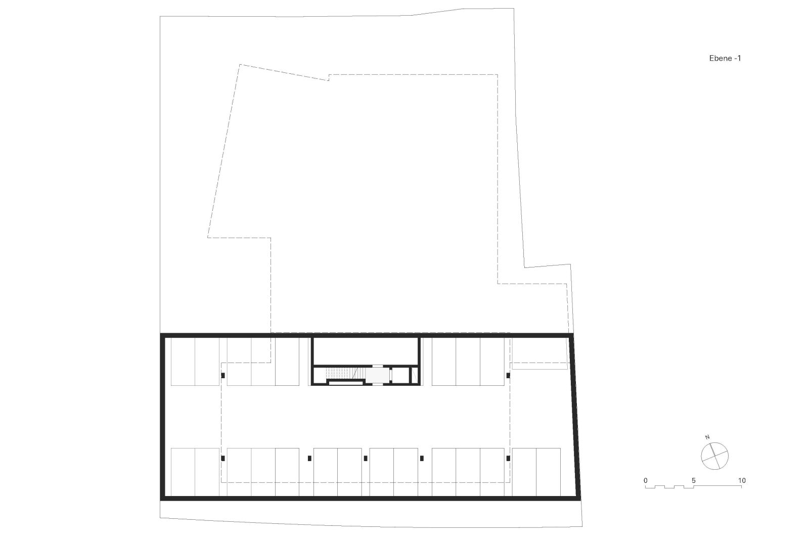
Mit dem Entwurf wird der Überbauungsplan von 2002 überarbeitet. Das neu gesetzte Volumen in der zweiten Bebauungsreihe orientiert sich sowohl am bestehenden Überbauungsplan als auch zusätzlich an der weiterentwickelten Dorfstruktur. Die zwei Baukörper werden unterteilt in Wohnen und Gewerbe. Der am Bangarten langgezogene Baukörper wird mit einem flexiblen Raster versehen welcher sowohl Gewerbe als auch Wohnen zulässt.

 

Der rückwärtig gesetzte Punktbau wird als reiner Wohnbau projektiert. Grosszügige dreiseitig orientierte Eigentumswohnungen mit modernen Loggias finden im Baukörper Platz. Der gemeinsame Sockel mit Tiefgarage und Nebenräumen verbindet die beiden Wohnkörper im Untergrund.

 

Becker Architektur © 2020

  • Aktuell
  • Neubauten
  • Sanierungen
  • Studien
  • Büro
  • Architektur+

 

Becker Architektur © 2020