BeckerArchitektur
  • Aktuell
  • Projekte
  • Büro
  • Neubauten
  • Sanierungen
  • Studien
 
  • Architektur+

 

Zubau am Hang

Gasthaus Planken

Wohnen im Lett

Wohnen an der Kirchstrasse

Villa Hellweg

Haus im Grünen

Wohnen an der Pflugstrasse

Liechtensteinische Landesbibliothek

Messnerhaus Vaduz

Feuerwehrdepot Vaduz

Liechtensteinische Landesbank

Wohnen an der Lochgasse

Gemeindezentrum Clunia

LGT Timber

Wohnen im Bangarten

Wohnen im Feld

Wohnen im Quartier

Wohnen im Alter

Jugendherberge Vaduz – Schaan

Wohnen über den Dächern

Gemeinde Vaduz und Liechtensteinisches Rotes Kreuz

Wohnen im Gewerbe

 

Becker Architektur © 2020

 

Wohnen über den Dächern

Zum Projektbeschrieb Zur Bildgalerie

 

 

Die Aufstockung des Geschäftsgebäudes in der Industriezone schafft aussergewöhnliche Wohnräume und unterschiedliche Aussenraumqualitäten.

  • Ort
    Triesen, Liechtenstein

  • Bearbeitung
    2017

  • Auftraggeber
    Privat

  • Grösse
    390 Quadratmeter

  • Architektur
    Becker Architektur AG

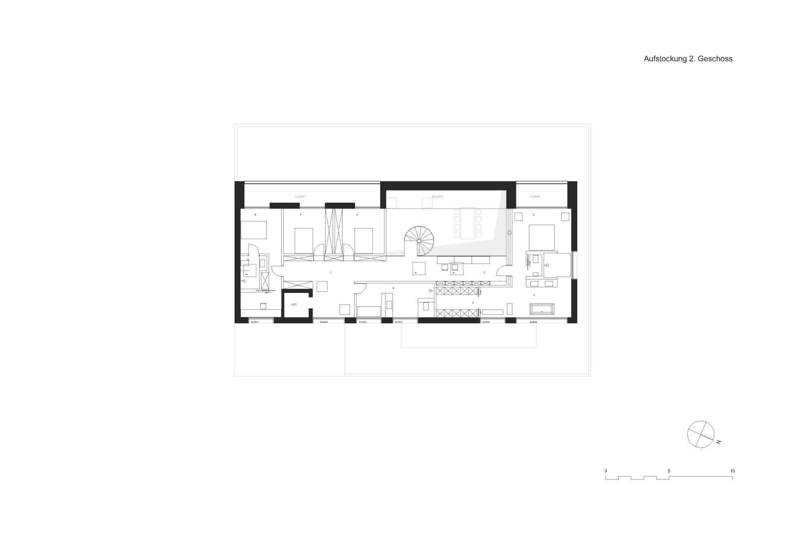
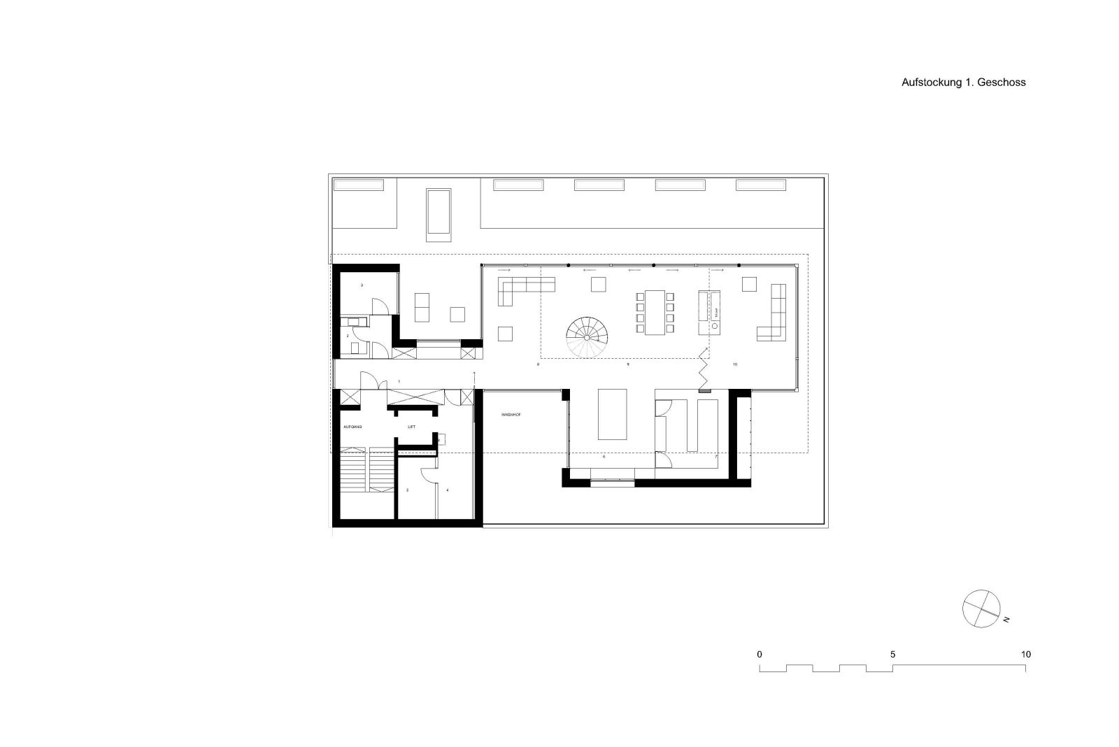
Mitten im Industriegebiet in Triesen steht das grosse Geschäftsgebäude mit seiner klaren Grundstruktur. Diese Struktur nutzend und den Treppenhauskern ergänzend schafft die geplante Aufstockung mit einer Wohneinheit ein aussergewöhnliches Wohnerlebnis. Über den Dächern der Industrie und trotzdem mit den Qualitäten eines grosszügigen Wohnhauses, offen und vielseitig. Auf über 390 Quadratmetern verteilen sich die Wohnräume auf zwei Etagen. 

Die Galerie verbindet die unteren Wohnräume mit den oberen Privaträumen und ist mit seiner offenen Treppe das Highlight der Wohneinheit. Die offene Struktur verbindet die unterschiedlichen Aussenräume mit dem Inneren und schafft fliessende Übergänge. Innenhöfe und Dachgärten wechseln sich in der Raumqualität ab und ergänzen die Wohnräume.

 

Becker Architektur © 2020

  • Aktuell
  • Neubauten
  • Sanierungen
  • Studien
  • Büro
  • Architektur+

 

Becker Architektur © 2020